20/27
Paylaş
Resmi Orjinal Boyutunda Göster
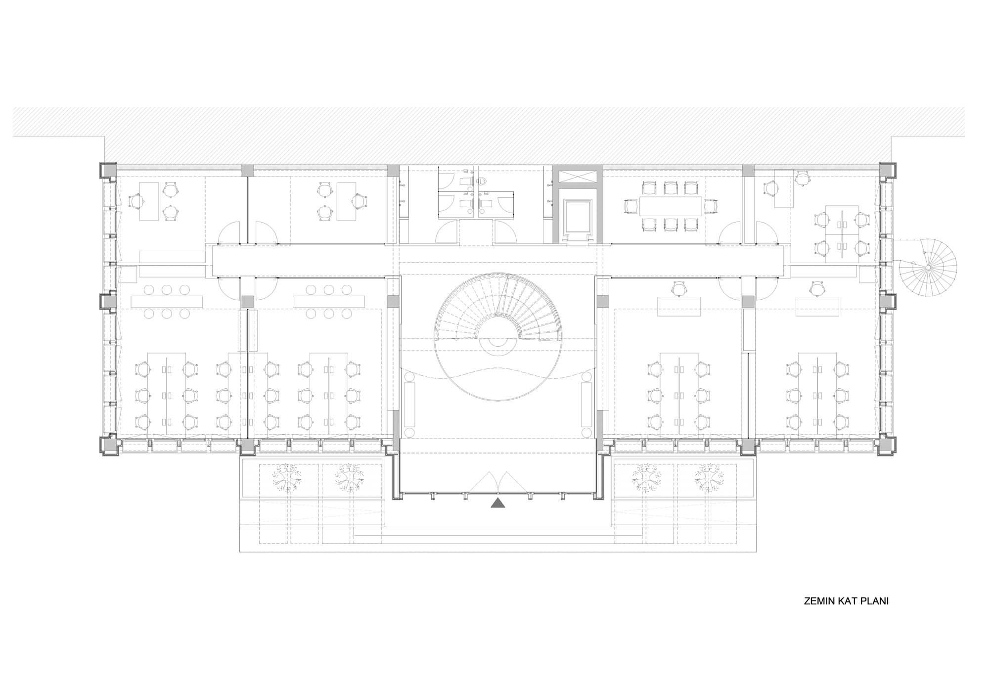
Empera İdari Bina
Project Location: Gaziantep
Project Office: Yerce + Taylan Architects, ZAAS
Project Type: Offices
Proje Tipi Grubu: Commercial
Tasarım Ekibi: Nail Egemen Yerce, Ayça Taylan, Zeynep Şankaynağı, Barış Çağlar
Employer: Empera
Yardımcı: Melike Kavalalı, Gökçe Demiral
Ana Yüklenici: 2D Yaşar Yapı
Projcet Manager: Nail Egemen Yerce
Lighting Project: LAB1 Aydınlatma Tasarımı
Structural Project: 2D Yaşar Yapı
Mechanical Project: 2D Yaşar Yapı
Electrical Project: 2D Yaşar Yapı
Plumbing Project: 2D Yaşar Yapı
Yangın Tahliye Projesi: 2D Yaşar Yapı
Photography: Yerce Art Photography, Emin Emrah Yerce, Ayça Taylan
Architectural Supervision: Yerce + Taylan Architects, ZAAS
Construction Site Manager: Turgut Yaşar
Project Start Date: 2016
Project End Date: 2017
Construction Start Date: 2017
Construction End Date: 2018
Building Plot Area: 2,000 m²
Total Construction Area: 2,500 m²