21/27
Paylaş
Resmi Orjinal Boyutunda Göster
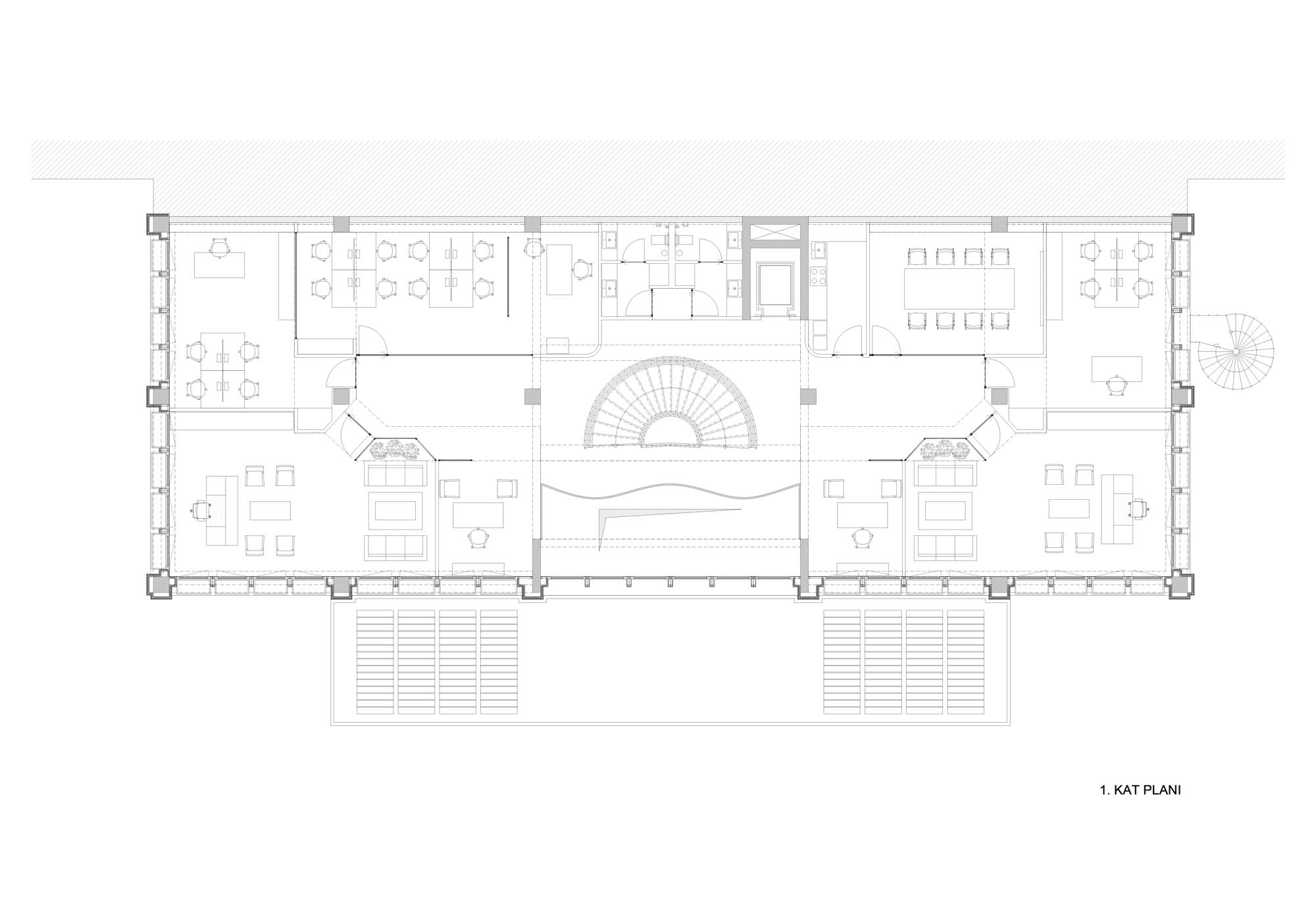
Empera İdari Bina
Proje Yeri: Gaziantep
Proje Ofisi: Yerce + Taylan Architects, ZAAS
Proje Tipi: Ofis
Proje Tipi Grubu: Ticari
Tasarım Ekibi: Nail Egemen Yerce, Ayça Taylan, Zeynep Şankaynağı, Barış Çağlar
İşveren: Empera
Yardımcı: Melike Kavalalı, Gökçe Demiral
Ana Yüklenici: 2D Yaşar Yapı
Proje Yöneticisi: Nail Egemen Yerce
Aydınlatma Projesi: LAB1 Aydınlatma Tasarımı
Statik Projesi: 2D Yaşar Yapı
Mekanik Projesi: 2D Yaşar Yapı
Elektrik Projesi: 2D Yaşar Yapı
Tesisat Projesi: 2D Yaşar Yapı
Yangın Tahliye Projesi: 2D Yaşar Yapı
Fotoğraf: Yerce Art Photography, Emin Emrah Yerce, Ayça Taylan
Mimari Mesleki Kontrollük: Yerce + Taylan Architects, ZAAS
Şantiye Yöneticisi: Turgut Yaşar
Proje Başlangıç Yılı: 2016
Proje Bitiş Yılı: 2017
İnşaat Başlangıç Yılı: 2017
İnşaat Bitiş Yılı: 2018
Arsa Alanı: 2,000 m²
Toplam İnşaat Alanı: 2,500 m²