13/15
Paylaş
Resmi Orjinal Boyutunda Göster
Kumru Ankara
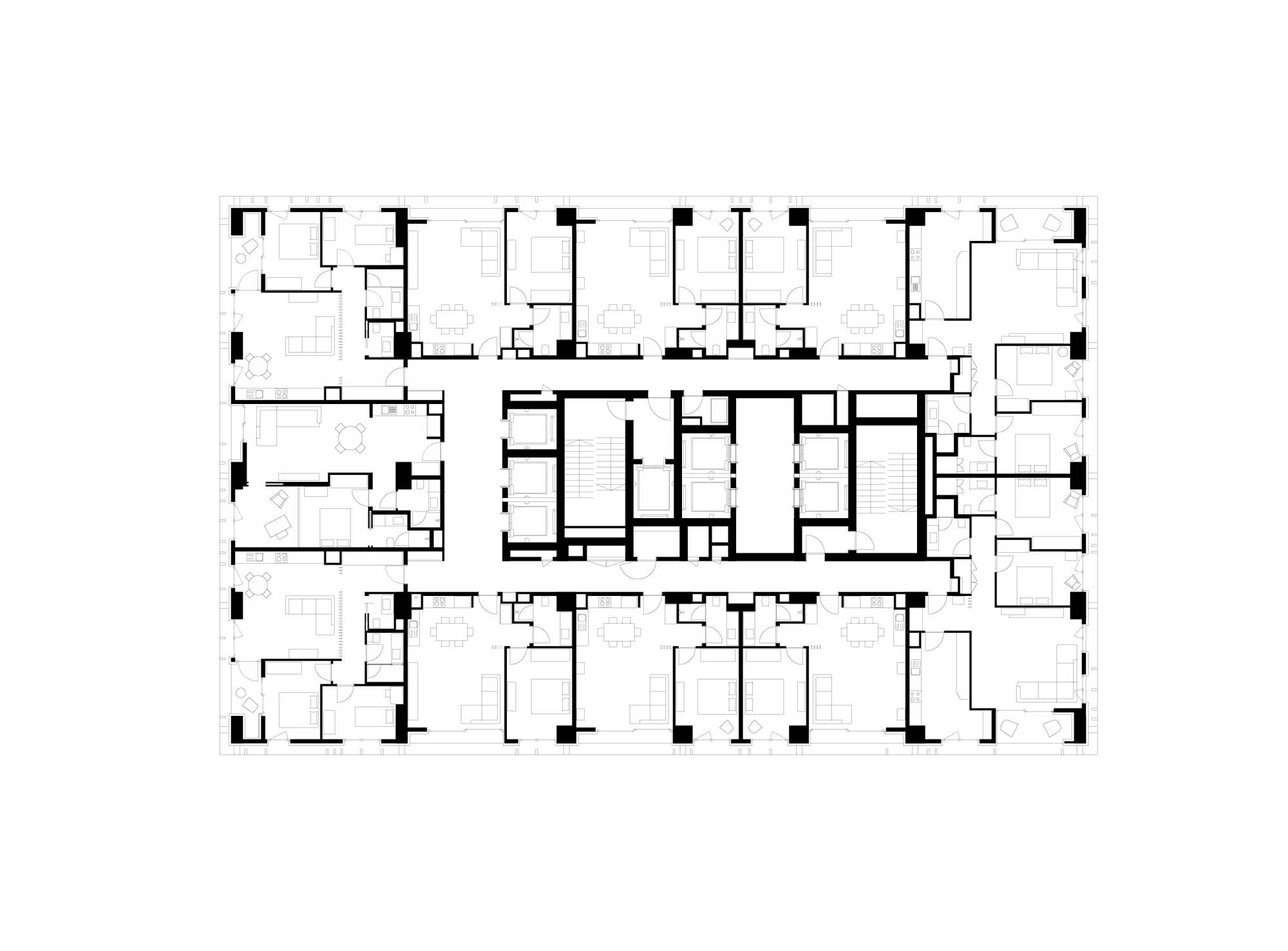
Project Location: Ankara, Çankaya
Project Office: A Tasarım Mimarlık
Project Type: Offices, Apartment
Proje Tipi Grubu: Commercial, Konut
Tasarım Ekibi: Ali Osman Öztürk
Employer: Kuzu Toplu Konut İnşaat AŞ
Yardımcı: Harun Karabulut, Nil Ece Beken, Ceyda Er Çelik, Sinan Özkan, Ersin Candan, Cüneyt Öztürk, Hatice Baştabak Kantar, Ece Durmaz
Ana Yüklenici: Kuzu Toplu Konut İnşaat AŞ
Peyzaj Mimarlığı: Dalokay Tasarım Stüdyosu (DDS)
Interior Architecture: Profit
Structural Project: Yüksek Proje
Mechanical Project: Metta Mühendislik
Electrical Project: Yurdakul Mühendislik
Fire Safety Consultant: Alara Proje
Photography: Fethi Mağara
Project Start Date: 2014
Project End Date: 2015
Construction Start Date: 2015
Construction End Date: 2019
Building Plot Area: 10,600 m2
Total Construction Area: 60,200 m2