14/15
Paylaş
Resmi Orjinal Boyutunda Göster
Kumru Ankara
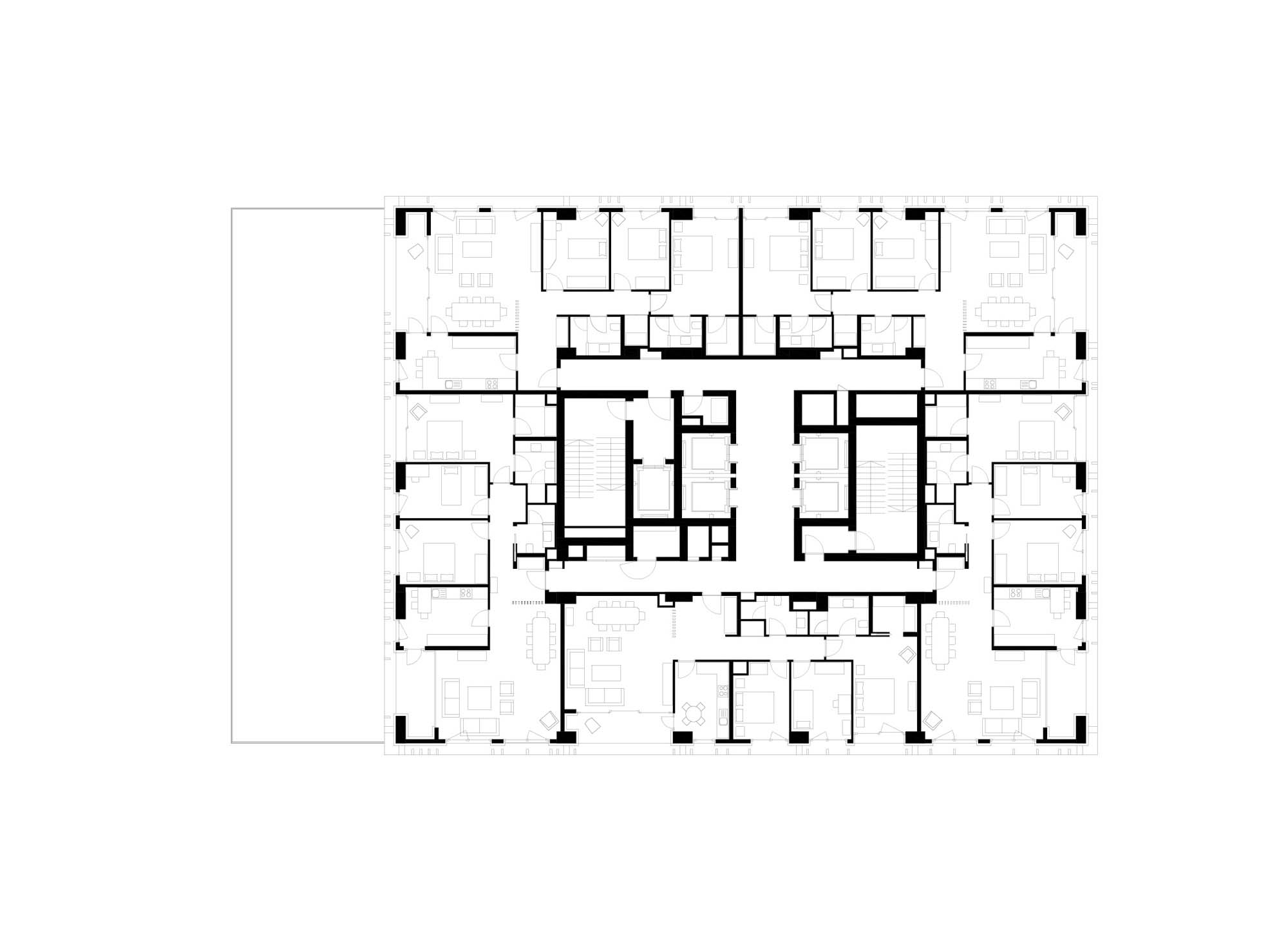
Proje Yeri: Ankara, Çankaya
Proje Ofisi: A Tasarım Mimarlık
Proje Tipi: Ofis, Apartman
Proje Tipi Grubu: Ticari, Konut
Tasarım Ekibi: Ali Osman Öztürk
İşveren: Kuzu Toplu Konut İnşaat AŞ
Yardımcı: Harun Karabulut, Nil Ece Beken, Ceyda Er Çelik, Sinan Özkan, Ersin Candan, Cüneyt Öztürk, Hatice Baştabak Kantar, Ece Durmaz
Ana Yüklenici: Kuzu Toplu Konut İnşaat AŞ
Peyzaj Mimarlığı: Dalokay Tasarım Stüdyosu (DDS)
İç Mekan Projesi: Profit
Statik Projesi: Yüksek Proje
Mekanik Projesi: Metta Mühendislik
Elektrik Projesi: Yurdakul Mühendislik
Yangın Güvenlik Danışmanı: Alara Proje
Fotoğraf: Fethi Mağara
Proje Başlangıç Yılı: 2014
Proje Bitiş Yılı: 2015
İnşaat Başlangıç Yılı: 2015
İnşaat Bitiş Yılı: 2019
Arsa Alanı: 10,600 m2
Toplam İnşaat Alanı: 60,200 m2