20/25
Paylaş
Resmi Orjinal Boyutunda Göster
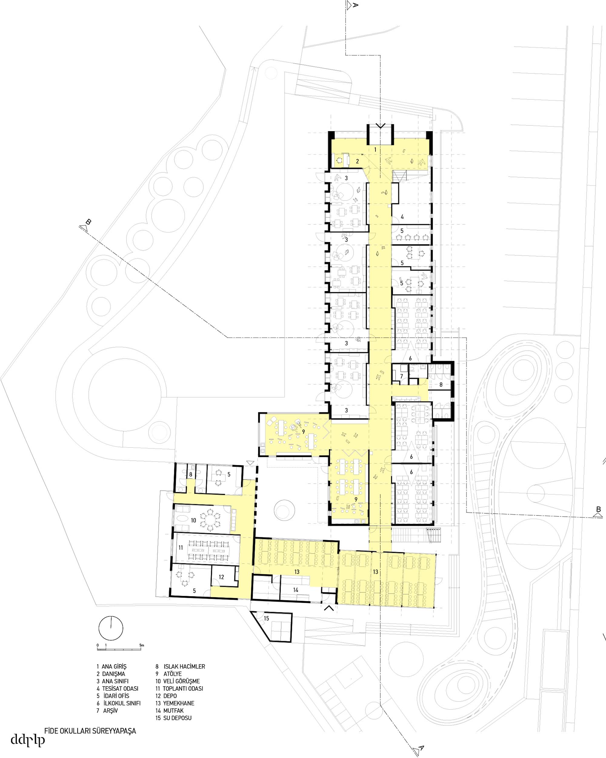
Fide Okulları Süreyyapaşa
Proje Yeri: Maltepe, İstanbul
Proje Ofisi: ddrlp Mimarlık ve Tasarım Hizmetleri
Proje Tipi: İlkokul, Anaokulu / Kreş
Proje Tipi Grubu: Eğitim
Tasarım Ekibi: Boğaçhan Dündaralp, Berna Dündaralp, Sezgi Göktepe
İşveren: Fide Okulları
Ana Yüklenici: Firstarc, Mustafa Bülent Aydın
Proje Başlangıç Yılı: 2018
Proje Bitiş Yılı: 2018
İnşaat Başlangıç Yılı: 2018
İnşaat Bitiş Yılı: 2018
Arsa Alanı: 5,400 m²
Toplam İnşaat Alanı: 2,720 m²