22/25
Paylaş
Resmi Orjinal Boyutunda Göster
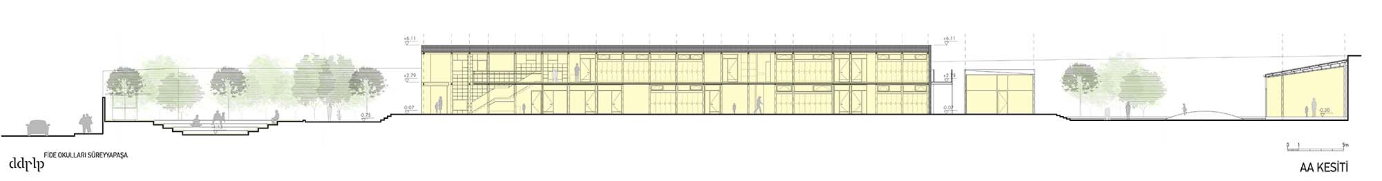
Fide Okulları Süreyyapaşa
Project Location: Maltepe, İstanbul
Project Office: ddrlp Mimarlık ve Tasarım Hizmetleri
Project Type: İlkokul, Preschool / Nursery
Proje Tipi Grubu: Eğitim
Tasarım Ekibi: Boğaçhan Dündaralp, Berna Dündaralp, Sezgi Göktepe
Employer: Fide Okulları
Ana Yüklenici: Firstarc, Mustafa Bülent Aydın
Project Start Date: 2018
Project End Date: 2018
Construction Start Date: 2018
Construction End Date: 2018
Building Plot Area: 5,400 m²
Total Construction Area: 2,720 m²