12/13
Paylaş
Resmi Orjinal Boyutunda Göster
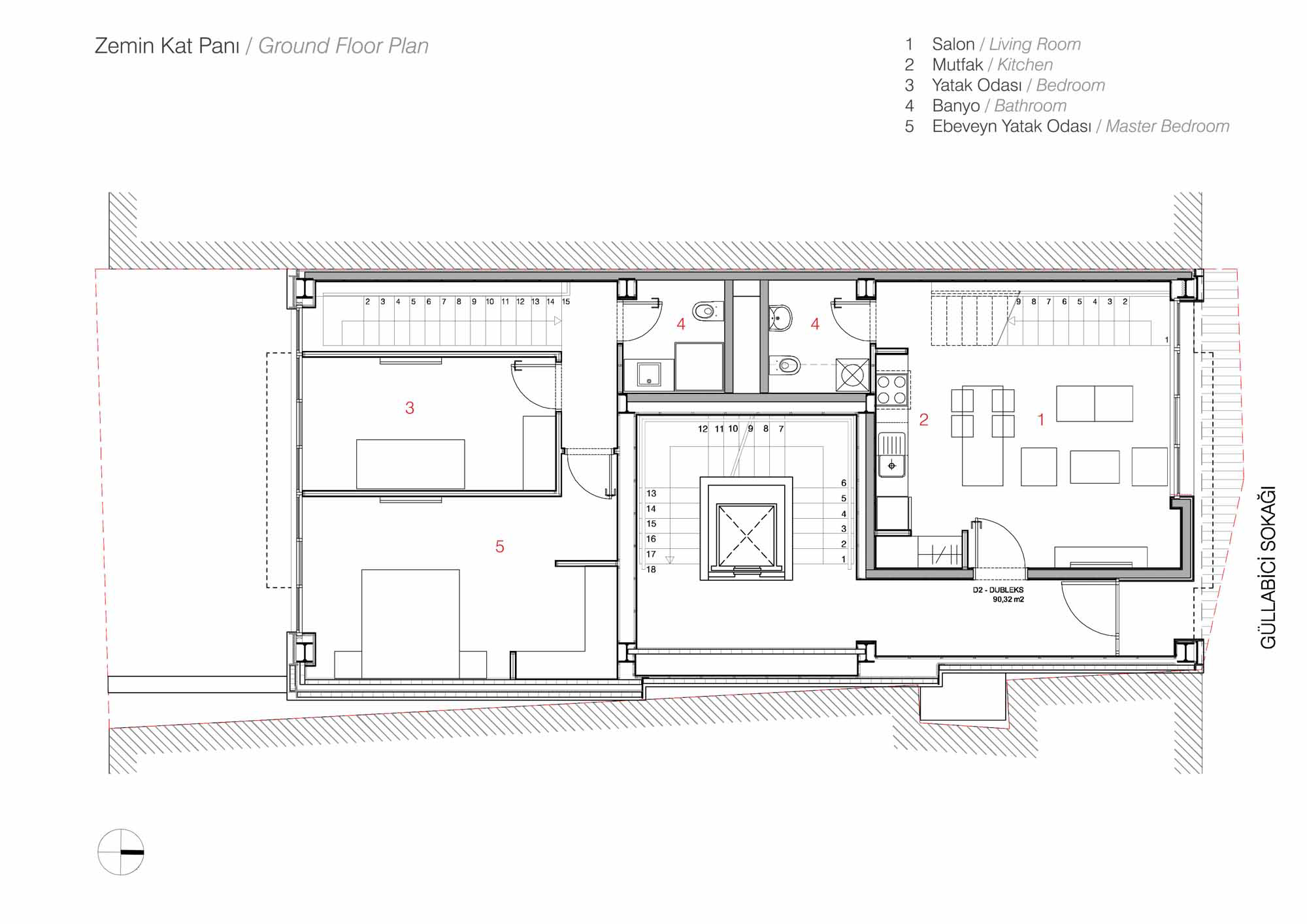
Noxx Apartmanı
Project Location: Beyoğlu, İstanbul
Project Office: CM Mimarlık
Project Type: Apartment
Proje Tipi Grubu: Konut
Tasarım Ekibi: Cem Sorguç
Employer: Prospera Gayrimenkul
Consultant: Oğuz Cem Çelik
Yardımcı: Sezin Ergene, Elvan Çakıt, Tolga Yağlı, Amina Rezoug, Deniz Gezgin
Structural Project: Özcihan / Akgül Mühendislik
Mechanical Project: Neva Proje ve Mühendislik
Electrical Project: Tasarım Proje
Photography: Cemal Emden
Project Start Date: 2011
Project End Date: 2011
Construction Start Date: 2012
Construction End Date: 2013
Building Plot Area: 128,37 m²
Total Construction Area: , 733,02 m²