13/13
Paylaş
Resmi Orjinal Boyutunda Göster
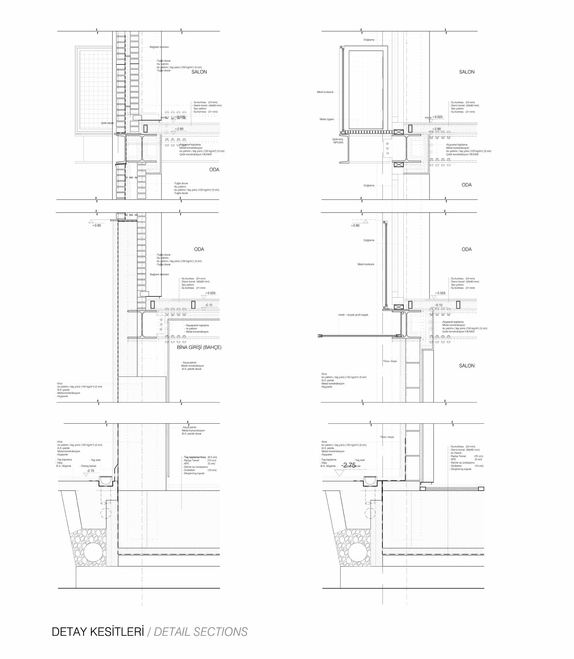
Noxx Apartmanı
Proje Yeri: Beyoğlu, İstanbul
Proje Ofisi: CM Mimarlık
Proje Tipi: Apartman
Proje Tipi Grubu: Konut
Tasarım Ekibi: Cem Sorguç
İşveren: Prospera Gayrimenkul
Danışman: Oğuz Cem Çelik
Yardımcı: Sezin Ergene, Elvan Çakıt, Tolga Yağlı, Amina Rezoug, Deniz Gezgin
Statik Projesi: Özcihan / Akgül Mühendislik
Mekanik Projesi: Neva Proje ve Mühendislik
Elektrik Projesi: Tasarım Proje
Fotoğraf: Cemal Emden
Proje Başlangıç Yılı: 2011
Proje Bitiş Yılı: 2011
İnşaat Başlangıç Yılı: 2012
İnşaat Bitiş Yılı: 2013
Arsa Alanı: 128,37 m²
Toplam İnşaat Alanı: , 733,02 m²