31/48
Paylaş
Resmi Orjinal Boyutunda Göster
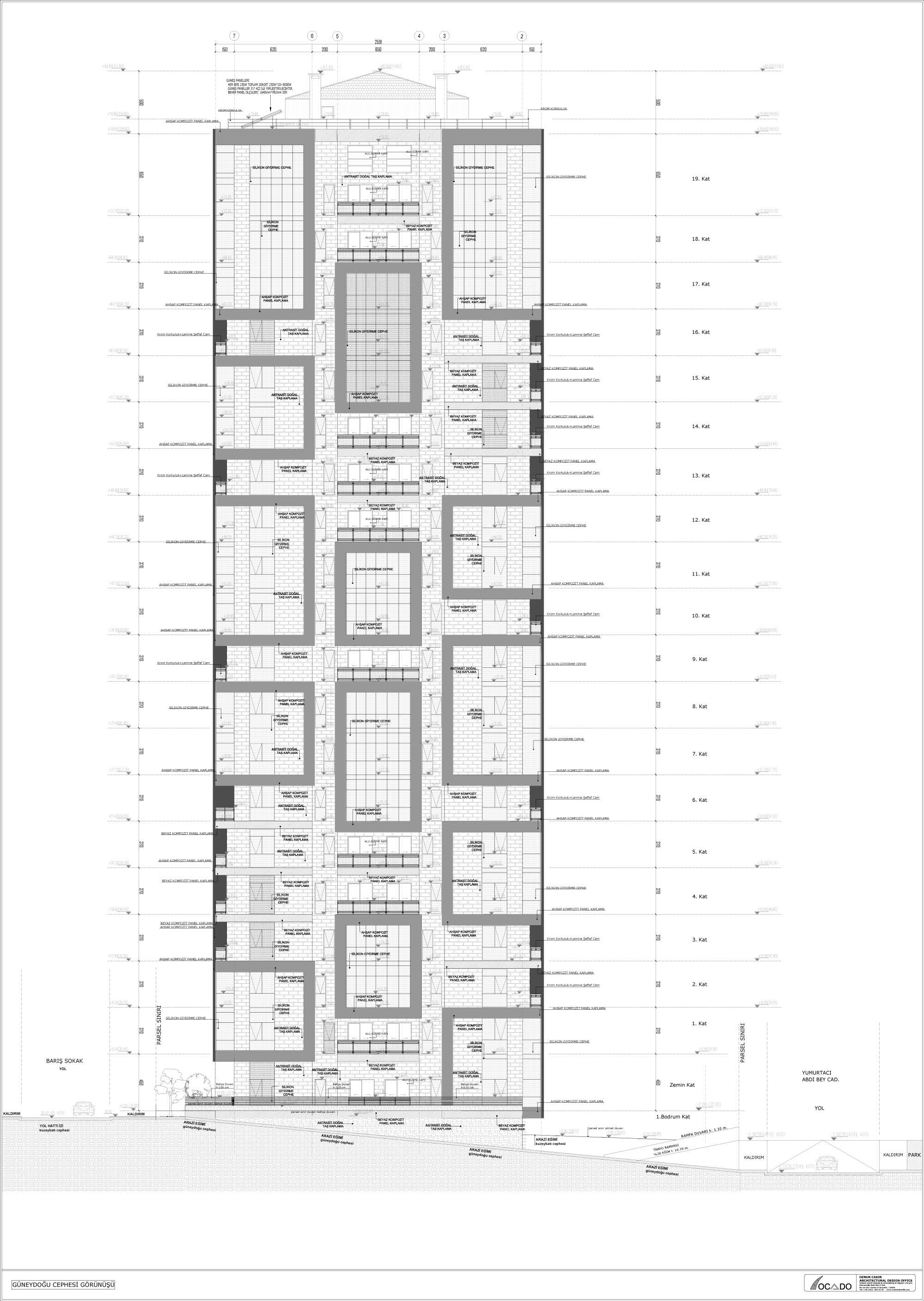
Alya Life Residence
Project Location: Kadıköy, İstanbul
Project Office: OCADO Mimarlık
Project Type: Apartment
Proje Tipi Grubu: Konut
Tasarım Ekibi: Öznur Çakır
Employer: Ekşioğlu Yapı
Yardımcı: Ayfer Güleç, Berkay Avcı
Ana Yüklenici: Ekşioğlu Yapı
Projcet Manager: Öznur Çakır
Structural Project: Volkan Mühendislik
Mechanical Project: 3L Mühendislik
Electrical Project: Tepaş Mühendislik
Plumbing Project: 3L Mühendislik
Photography: Selçuk Dursun
Project Start Date: 2013
Project End Date: 2015
Construction Start Date: 2016
Construction End Date: 2019
Building Plot Area: 5,225 m2
Total Construction Area: 37,283 m2