42/48
Paylaş
Resmi Orjinal Boyutunda Göster
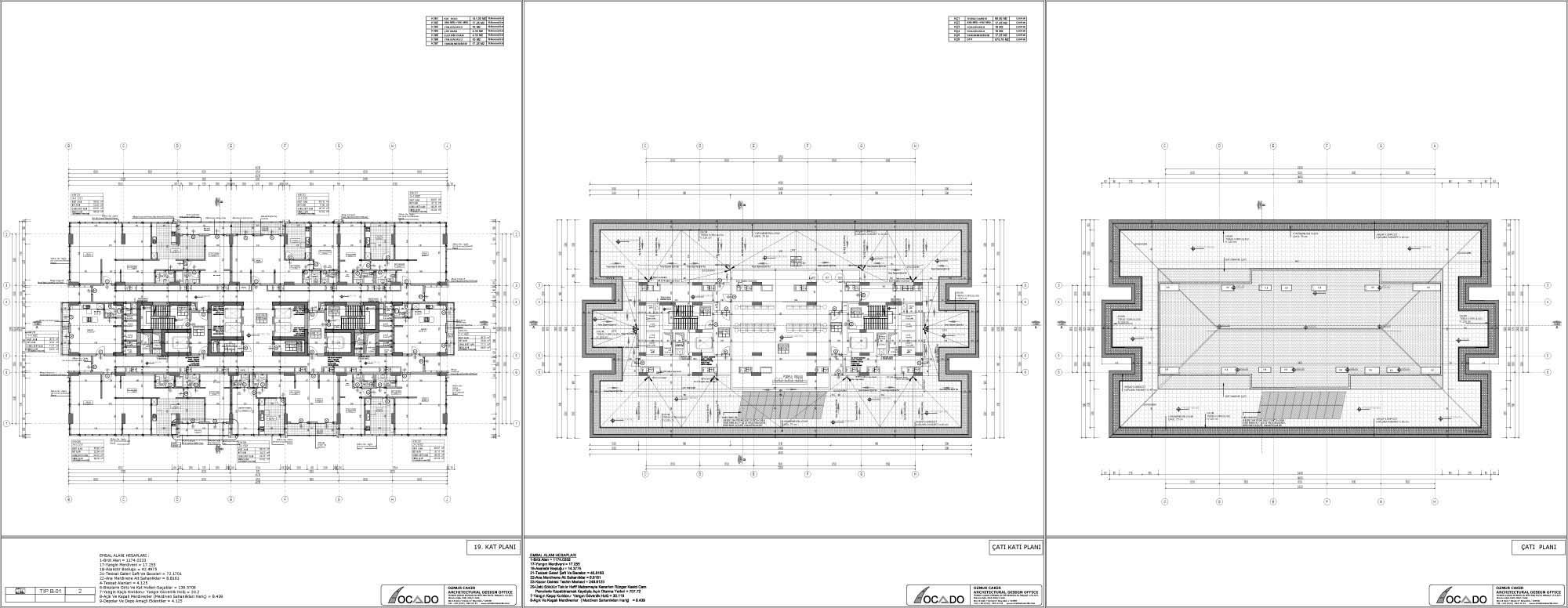
Alya Life Residence
Proje Yeri: Kadıköy, İstanbul
Proje Ofisi: OCADO Mimarlık
Proje Tipi: Apartman
Proje Tipi Grubu: Konut
Tasarım Ekibi: Öznur Çakır
İşveren: Ekşioğlu Yapı
Yardımcı: Ayfer Güleç, Berkay Avcı
Ana Yüklenici: Ekşioğlu Yapı
Proje Yöneticisi: Öznur Çakır
Statik Projesi: Volkan Mühendislik
Mekanik Projesi: 3L Mühendislik
Elektrik Projesi: Tepaş Mühendislik
Tesisat Projesi: 3L Mühendislik
Fotoğraf: Selçuk Dursun
Proje Başlangıç Yılı: 2013
Proje Bitiş Yılı: 2015
İnşaat Başlangıç Yılı: 2016
İnşaat Bitiş Yılı: 2019
Arsa Alanı: 5,225 m2
Toplam İnşaat Alanı: 37,283 m2