20/27
Paylaş
Resmi Orjinal Boyutunda Göster
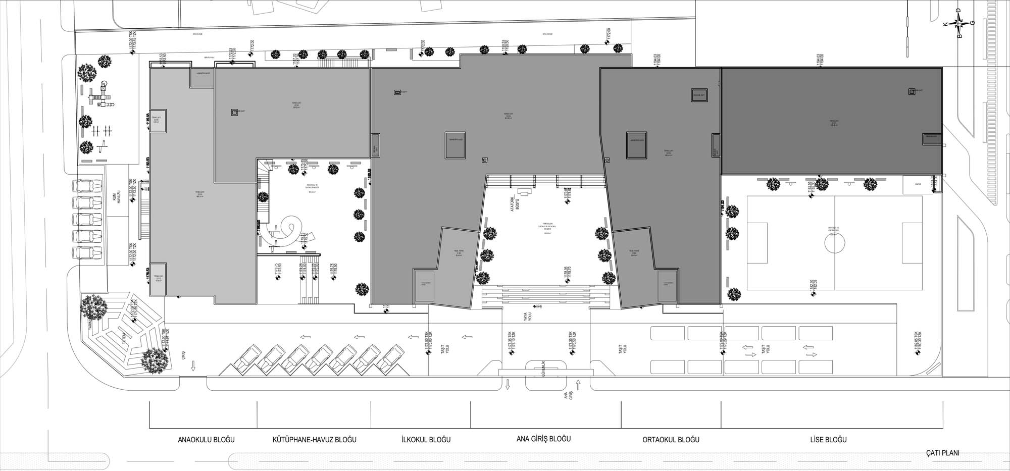
Anka Bilim Koleji
Project Location: Ankara, İncek
Project Office: EBC Mimarlık Proje
Project Type: High School
Proje Tipi Grubu: Eğitim
Tasarım Ekibi: Ekrem Bahadır Çalışkan
Employer: Fidanlar İnşaat
Consultant: Anka Bilim Koleji
Yardımcı: Fatih Zorer, Merve Yıldırım, Mustafa Özaltın
Ana Yüklenici: EBC Mimarlık Proje
Structural Project: Ayhan Fazlıoğlu
Electrical Project: Kemal Aykaç
Project Start Date: 2017
Project End Date: 2018
Construction Start Date: 2018
Construction End Date: 2019
Building Plot Area: 6,500 m²
Total Construction Area: 14,580 m²