24/27
Paylaş
Resmi Orjinal Boyutunda Göster
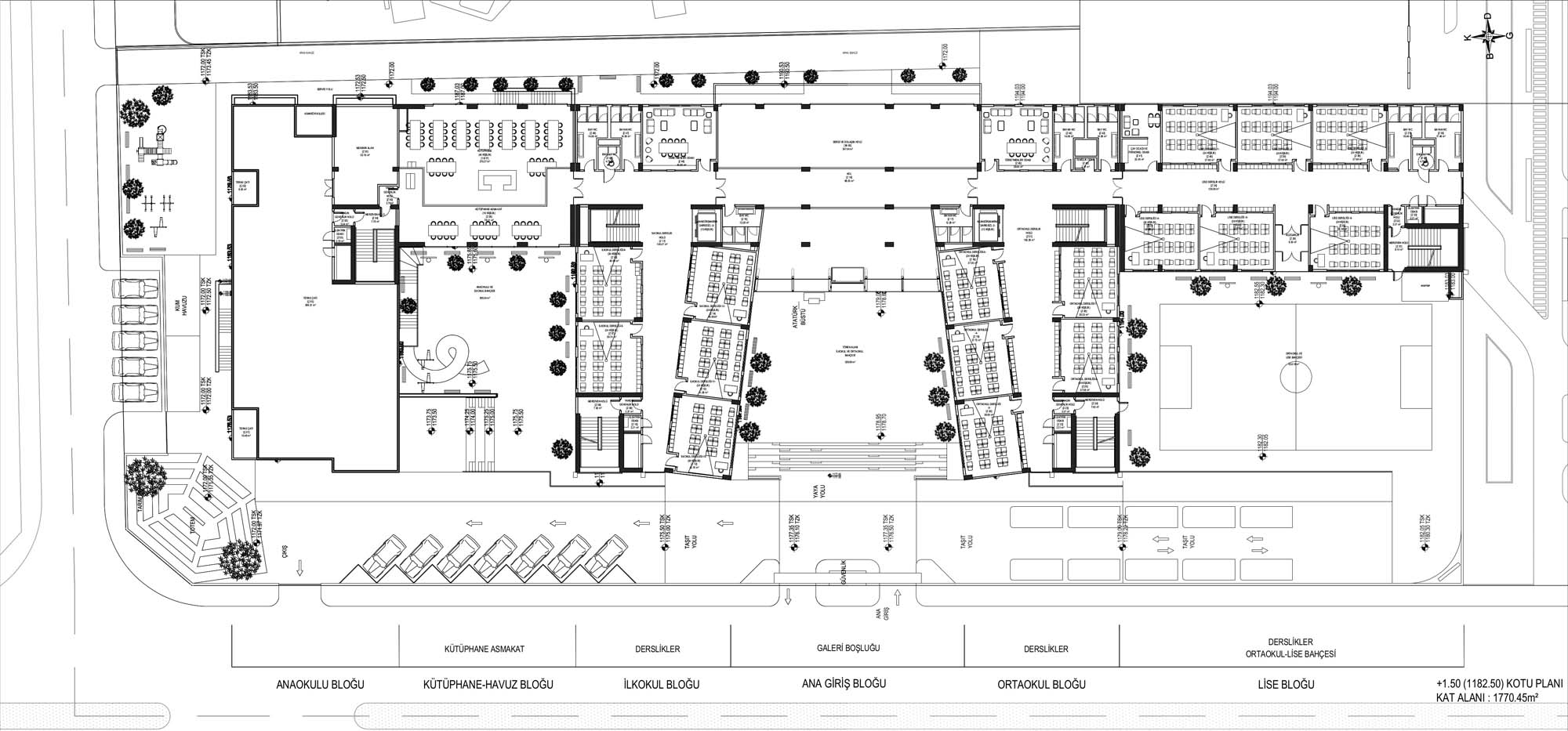
Anka Bilim Koleji
Proje Yeri: Ankara, İncek
Proje Ofisi: EBC Mimarlık Proje
Proje Tipi: Lise / Ortaöğretim
Proje Tipi Grubu: Eğitim
Tasarım Ekibi: Ekrem Bahadır Çalışkan
İşveren: Fidanlar İnşaat
Danışman: Anka Bilim Koleji
Yardımcı: Fatih Zorer, Merve Yıldırım, Mustafa Özaltın
Ana Yüklenici: EBC Mimarlık Proje
Statik Projesi: Ayhan Fazlıoğlu
Elektrik Projesi: Kemal Aykaç
Proje Başlangıç Yılı: 2017
Proje Bitiş Yılı: 2018
İnşaat Başlangıç Yılı: 2018
İnşaat Bitiş Yılı: 2019
Arsa Alanı: 6,500 m²
Toplam İnşaat Alanı: 14,580 m²