33/55
Paylaş
Resmi Orjinal Boyutunda Göster
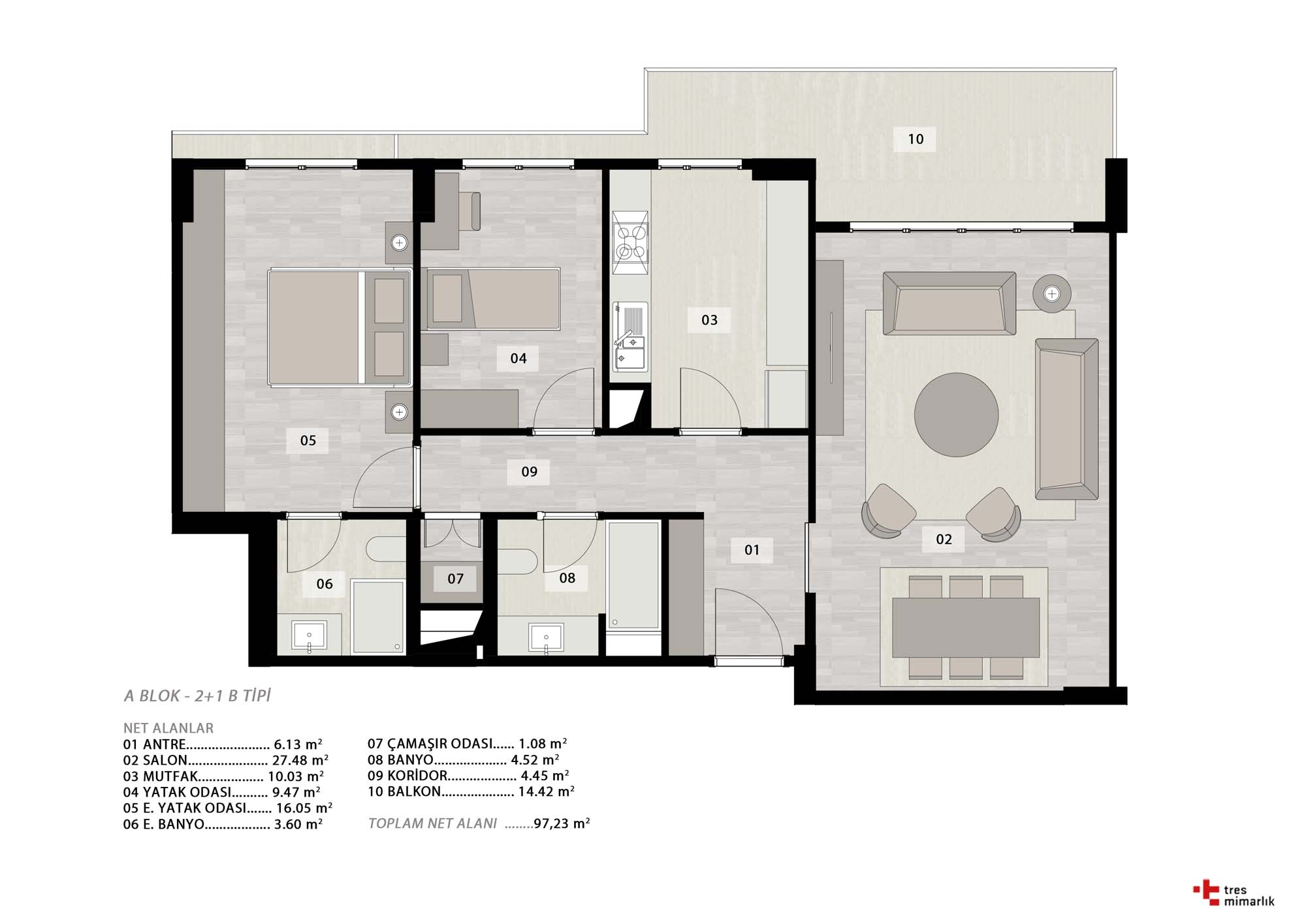
Aryom Koru Residence Gaziemir
Proje Yeri: İzmir, Gaziemir
Proje Ofisi: Tres Mimarlık
İşveren: Aryom İnşaat
Ana Yüklenici: Aryom İnşaat
Proje Başlangıç Yılı: 2016
Proje Bitiş Yılı: 2017
İnşaat Başlangıç Yılı: 2017
İnşaat Bitiş Yılı: 2019
Arsa Alanı: 8,749 m²
Toplam İnşaat Alanı: 32,957 m²