48/55
Paylaş
Resmi Orjinal Boyutunda Göster
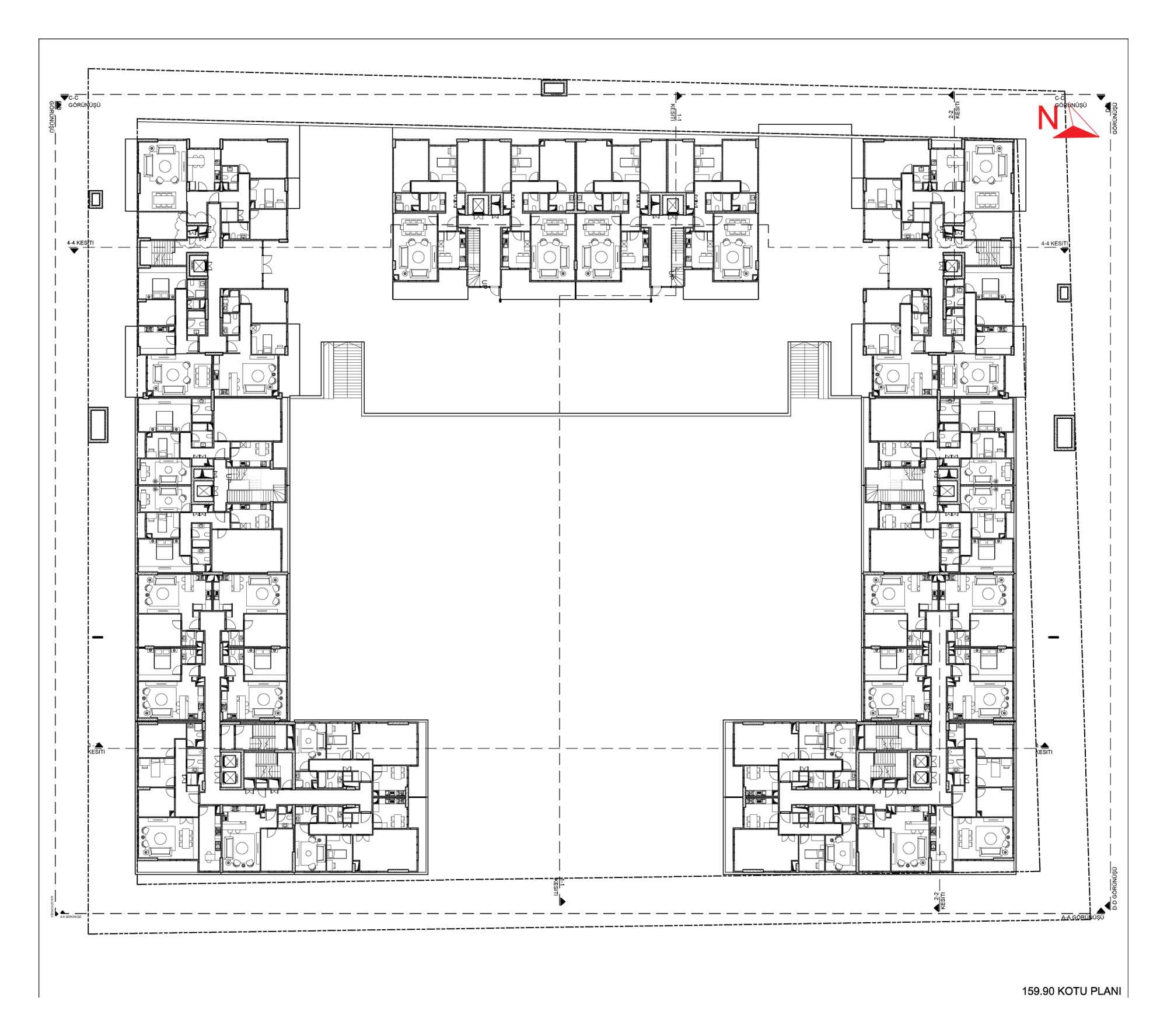
Aryom Koru Residence Gaziemir
Project Location: İzmir, Gaziemir
Project Office: Tres Mimarlık
Employer: Aryom İnşaat
Ana Yüklenici: Aryom İnşaat
Project Start Date: 2016
Project End Date: 2017
Construction Start Date: 2017
Construction End Date: 2019
Building Plot Area: 8,749 m²
Total Construction Area: 32,957 m²