65/73
Paylaş
Resmi Orjinal Boyutunda Göster
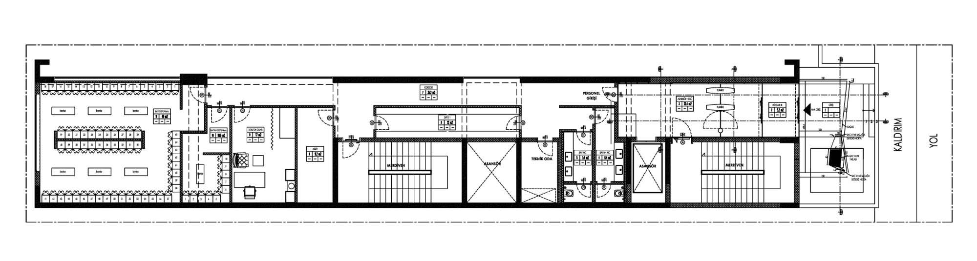
BAŞAR Technologies Fabrika Yönetim Ofisi
Proje Yeri: Çatalca, İstanbul
Proje Ofisi: Team Proje Mimarlık
Proje Tipi: Ofis
Proje Tipi Grubu: Endüstriyel
Tasarım Ekibi: Aykut Mete, Numan Zülfikar
İşveren: Başar Kimya Makine ve Kalıp Sanayi
Ana Yüklenici: Team Proje Mimarlık
Uygulama Projesi: İbrahim Alican, Serdar Ceylan
Fotoğraf: Gürkan Akay
Şantiye Yöneticisi: Tamer Ekinci
Proje Başlangıç Yılı: 2018
Proje Bitiş Yılı: 2018
İnşaat Başlangıç Yılı: 2019
İnşaat Bitiş Yılı: 2019
Toplam İnşaat Alanı: 1.200 m2