68/73
Paylaş
Resmi Orjinal Boyutunda Göster
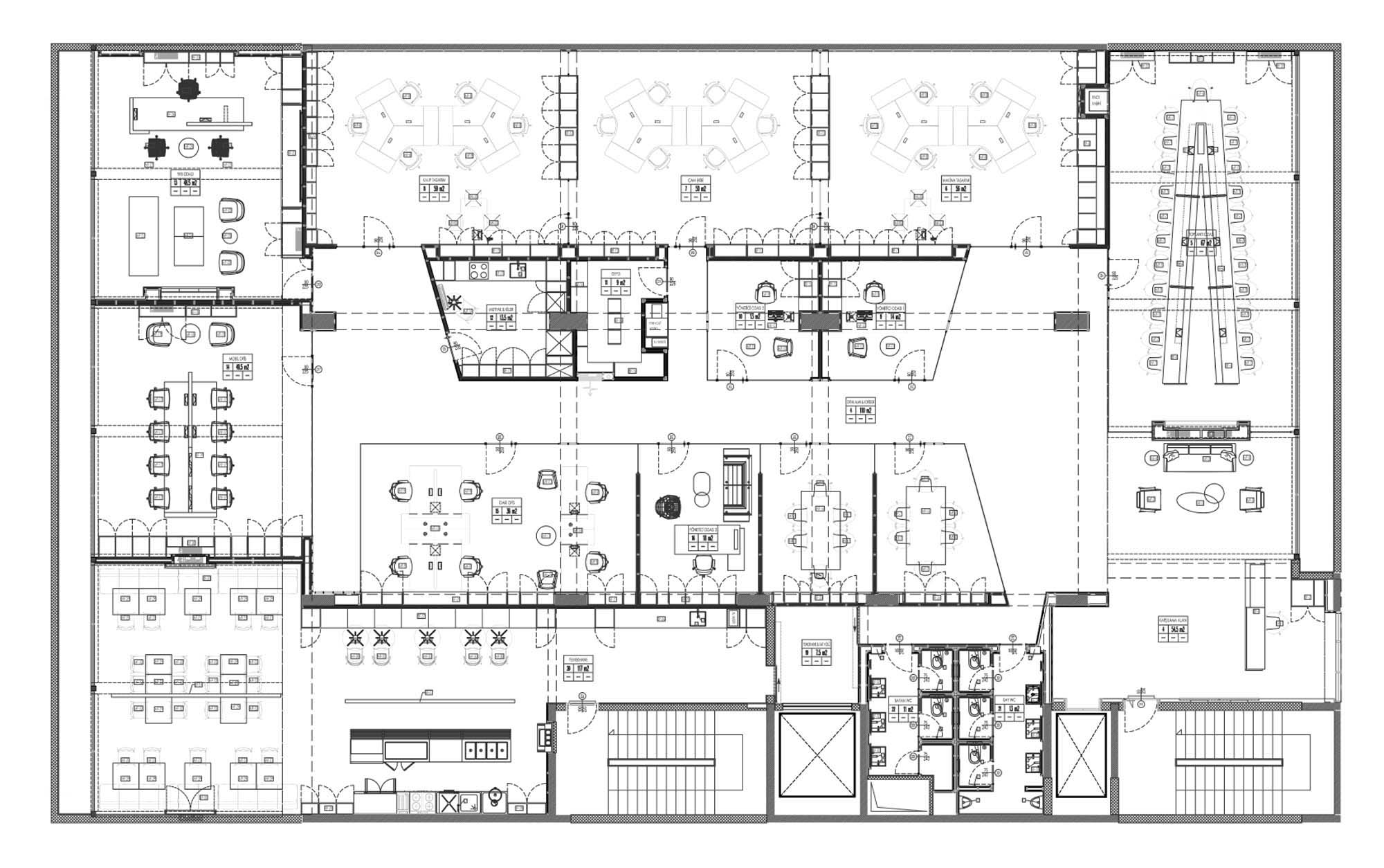
BAŞAR Technologies Fabrika Yönetim Ofisi
Project Location: Çatalca, İstanbul
Project Office: Team Proje Mimarlık
Project Type: Offices
Proje Tipi Grubu: Endüstriyel
Tasarım Ekibi: Aykut Mete, Numan Zülfikar
Employer: Başar Kimya Makine ve Kalıp Sanayi
Ana Yüklenici: Team Proje Mimarlık
Construction Drawings: İbrahim Alican, Serdar Ceylan
Photography: Gürkan Akay
Construction Site Manager: Tamer Ekinci
Project Start Date: 2018
Project End Date: 2018
Construction Start Date: 2019
Construction End Date: 2019
Total Construction Area: 1.200 m2