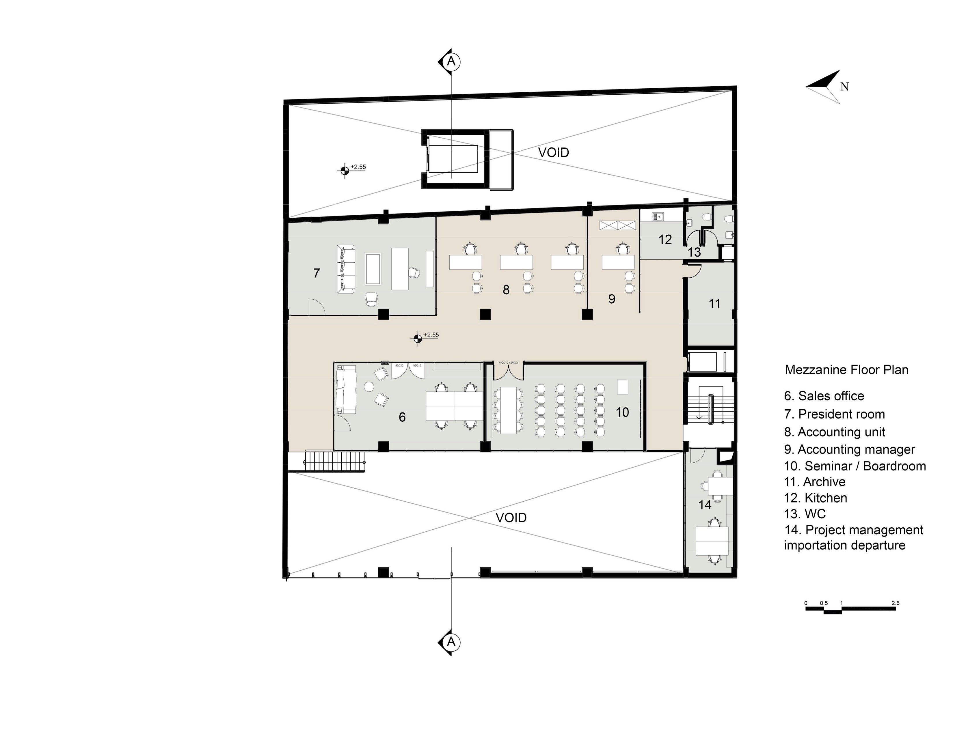
irme MezzanineFloorPlan
1/22
Paylaş
Resmi Orjinal Boyutunda Göster
Irme Elektrik Headquarters
Proje Yeri: İzmir
Proje Ofisi: XL Mimarlık+Mühendislik
Proje Tipi: Ofis
Tasarım Ekibi: Arda Işık, Ceren Çağan, Cemre Akalın, Mehmet Sadık Aksu, Hilal İduğ, Candan Öztürk, Tayfun Torunoğlu
Alt Yüklenici: Yön Müteahhitlik
Statik Projesi: XL Mimarlık+Mühendislik
Fotoğraf: Yön Müteahhitlik, Zeren + Mehmet Yasa Photography
İnşaat Bitiş Yılı: 2018
Toplam İnşaat Alanı: 4428