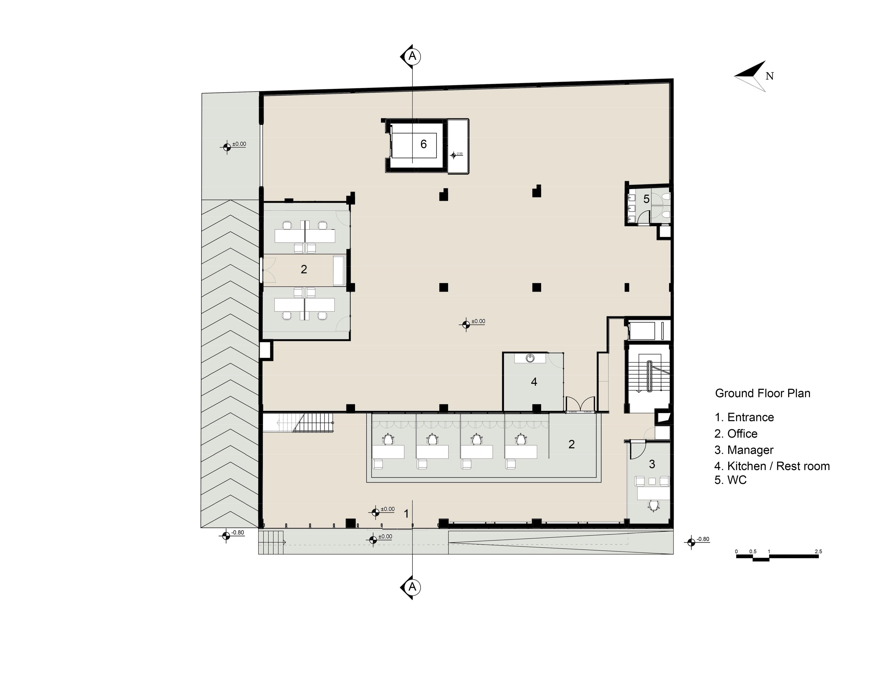
irme FirstFloorPlan
8/22
Paylaş
Resmi Orjinal Boyutunda Göster
Irme Elektrik Headquarters
Project Location: İzmir
Project Office: XL Mimarlık+Mühendislik
Project Type: Offices
Tasarım Ekibi: Arda Işık, Ceren Çağan, Cemre Akalın, Mehmet Sadık Aksu, Hilal İduğ, Candan Öztürk, Tayfun Torunoğlu
Alt Yüklenici: Yön Müteahhitlik
Structural Project: XL Mimarlık+Mühendislik
Photography: Yön Müteahhitlik, Zeren + Mehmet Yasa Photography
Construction End Date: 2018
Total Construction Area: 4428