30/36
Paylaş
Resmi Orjinal Boyutunda Göster
Liv Marine
Project Location: İstanbul, Beylikdüzü
Project Office: A2 Tasarım
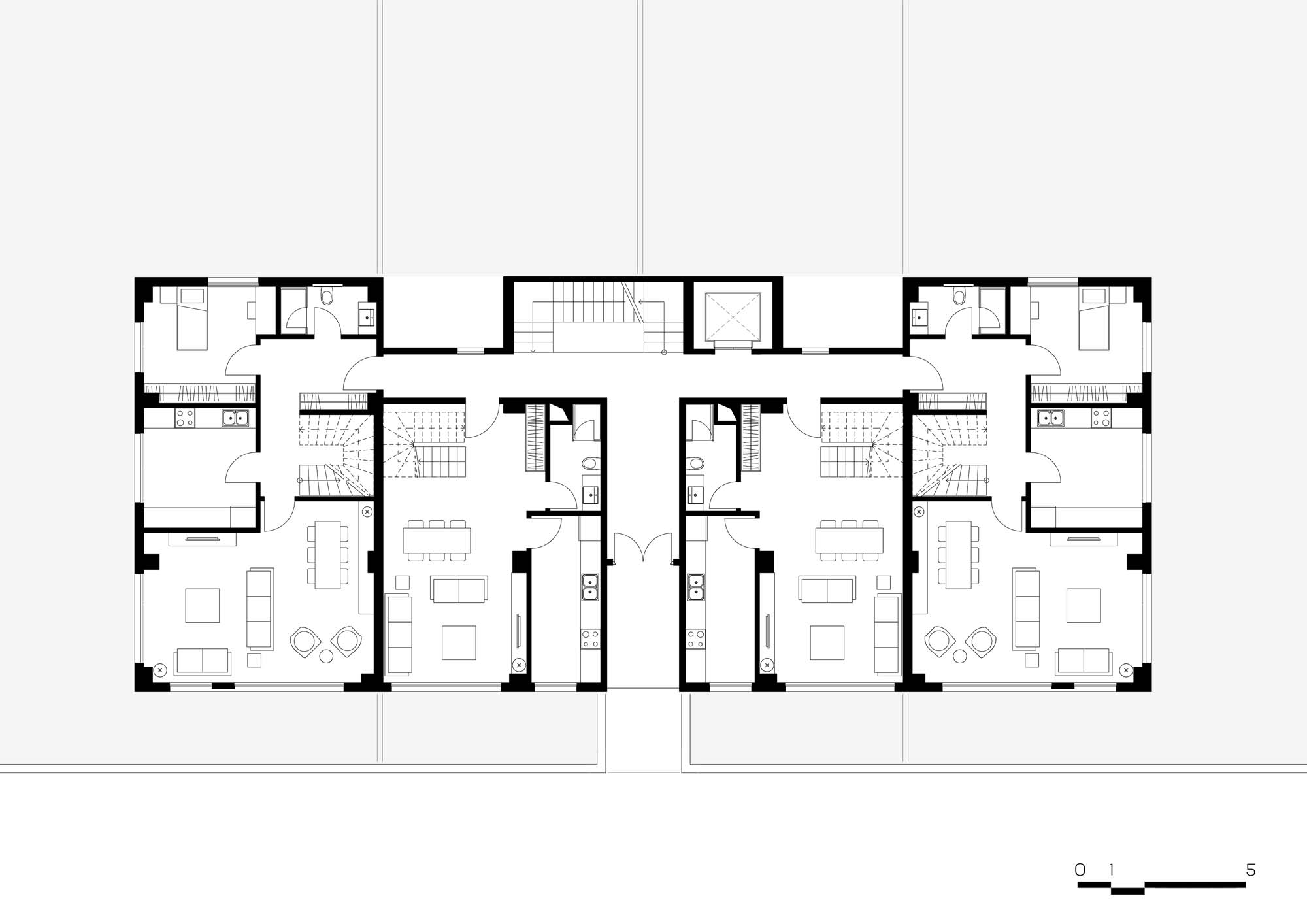
Project Type: Housing Complex
Proje Tipi Grubu: Konut
Tasarım Ekibi: Aydın Avunduk, Arman Yaşa, Özgür Dağlar
Employer: Liv Yapı
Consultant: Burcu Oğuz
Ana Yüklenici: Liv Yapı
Interior Architecture: Uğur Şeker Mimarlık, A2 Tasarım
Lighting Project: Merve Dönmez Yaşa
Structural Project: Tolga Bozyiğit
Mechanical Project: Orhan Gürses
Electrical Project: Yüksel Mengünoğul
Photography: Alp Eren, ALTKAT Architectural Photography
Construction Site Manager: Emrah Mallı
Project Start Date: 2016
Project End Date: 2017
Construction Start Date: 2017
Construction End Date: 2019
Building Plot Area: 10.028 m²
Total Construction Area: 24.706 m²