31/36
Paylaş
Resmi Orjinal Boyutunda Göster
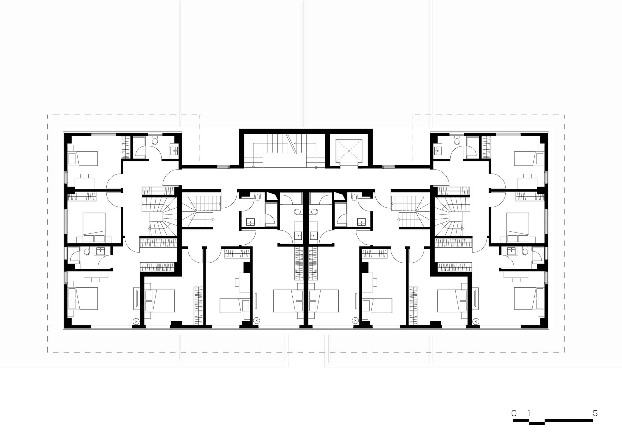
Liv Marine
Proje Yeri: İstanbul, Beylikdüzü
Proje Ofisi: A2 Tasarım
Proje Tipi: Konut Sitesi / Grubu
Proje Tipi Grubu: Konut
Tasarım Ekibi: Aydın Avunduk, Arman Yaşa, Özgür Dağlar
İşveren: Liv Yapı
Danışman: Burcu Oğuz
Ana Yüklenici: Liv Yapı
İç Mekan Projesi: Uğur Şeker Mimarlık, A2 Tasarım
Aydınlatma Projesi: Merve Dönmez Yaşa
Statik Projesi: Tolga Bozyiğit
Mekanik Projesi: Orhan Gürses
Elektrik Projesi: Yüksel Mengünoğul
Fotoğraf: Alp Eren, ALTKAT Architectural Photography
Şantiye Yöneticisi: Emrah Mallı
Proje Başlangıç Yılı: 2016
Proje Bitiş Yılı: 2017
İnşaat Başlangıç Yılı: 2017
İnşaat Bitiş Yılı: 2019
Arsa Alanı: 10.028 m²
Toplam İnşaat Alanı: 24.706 m²