12/19
Paylaş
Resmi Orjinal Boyutunda Göster
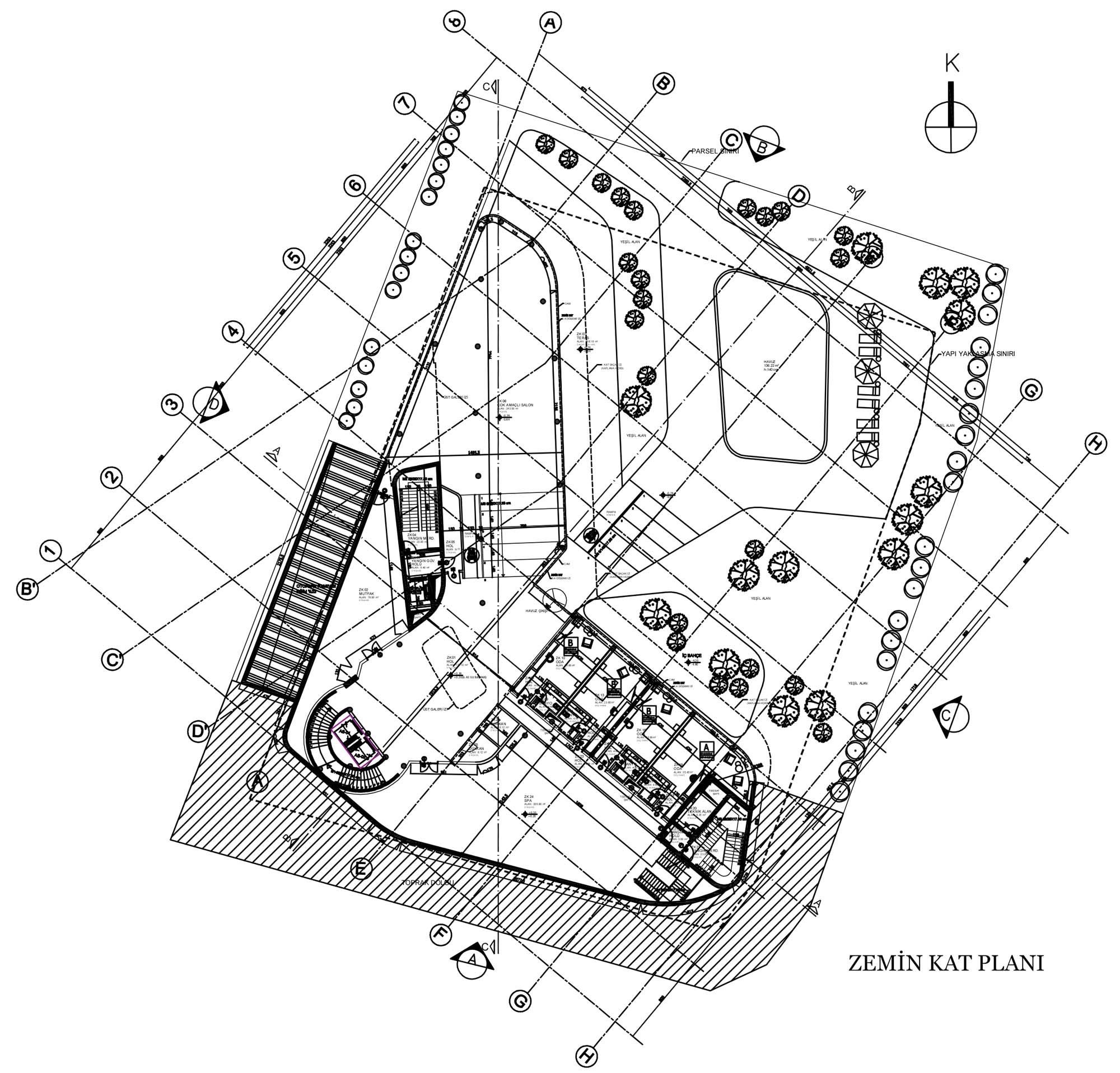
Reges a Luxury Collection Resort ve Spa
Project Location: İzmir, Çeşme
Project Office: Dilekci Mimarlık (DDA)
Project Type: Hotel / Motel
Proje Tipi Grubu: Konaklama
Tasarım Ekibi: Durmuş Dilekci
Employer: Reges Yapı
Yardımcı: Aslı Çalıkoğlu, Ayber Gülfer, Levent Küçükkaya, Yiğit Ergeçeni, Berkcan Çalışkan
Ana Yüklenici: Reges Yapı
Alt Yüklenici: More Contract
Interior Architecture: HBA, Sayeli Uysal
Projcet Manager: Aslı Çalıkoğlu
Structural Project: Bürostatik, İlker Ergüneş
Mechanical Project: Deniz Proje
Electrical Project: EN Proje
Plumbing Project: Deniz Proje
Fire Safety Consultant: Yanmadan Yangınla Mücadele
Photography: Emre Dörter
Project Start Date: 2014
Project End Date: 2018
Construction Start Date: 2017
Construction End Date: 2019
Building Plot Area: 3.406 m2
Total Construction Area: 8.332 m2