16/19
Paylaş
Resmi Orjinal Boyutunda Göster
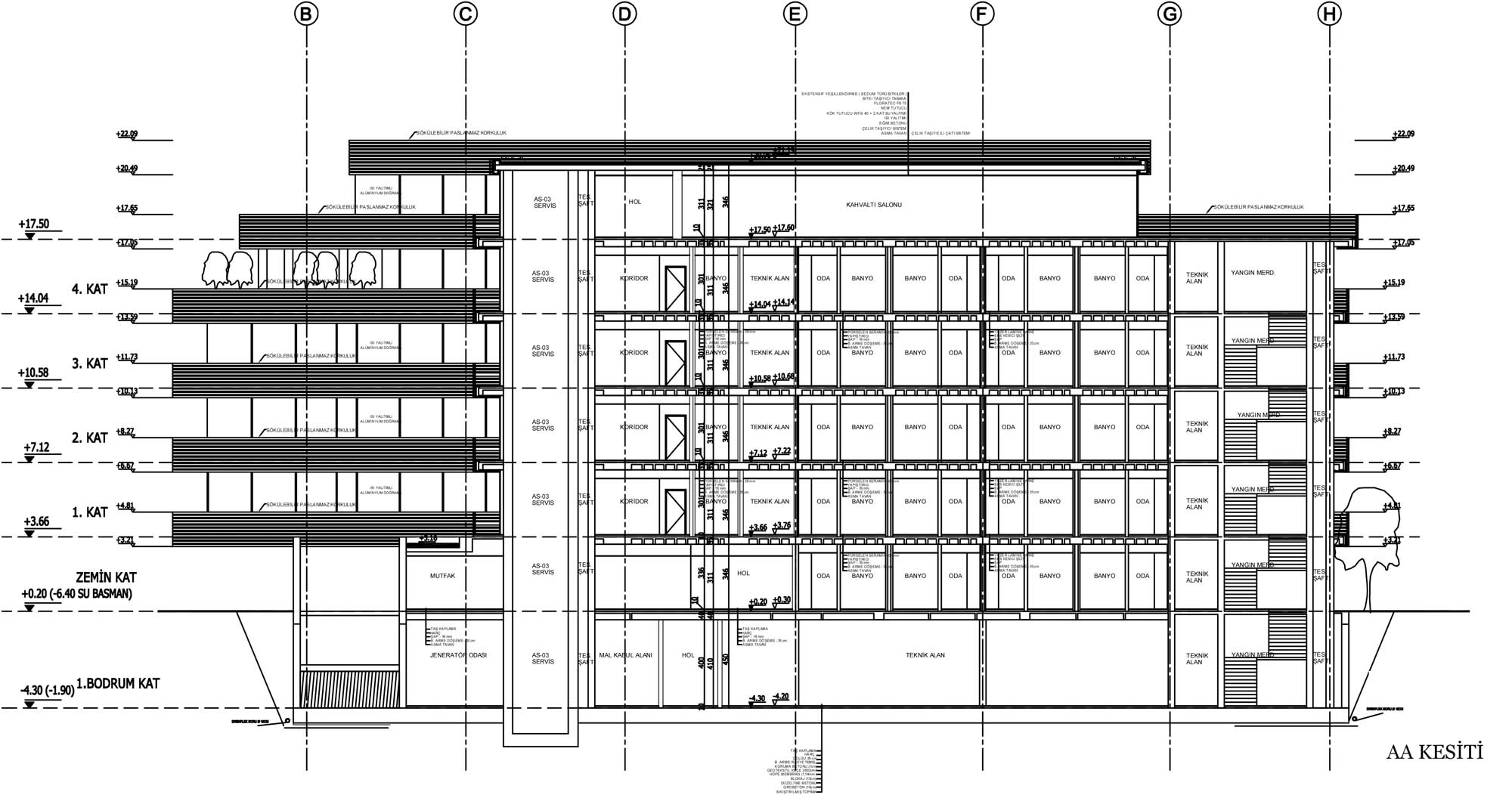
Reges a Luxury Collection Resort ve Spa
Proje Yeri: İzmir, Çeşme
Proje Ofisi: Dilekci Mimarlık (DDA)
Proje Tipi: Otel / Motel
Proje Tipi Grubu: Konaklama
Tasarım Ekibi: Durmuş Dilekci
İşveren: Reges Yapı
Yardımcı: Aslı Çalıkoğlu, Ayber Gülfer, Levent Küçükkaya, Yiğit Ergeçeni, Berkcan Çalışkan
Ana Yüklenici: Reges Yapı
Alt Yüklenici: More Contract
İç Mekan Projesi: HBA, Sayeli Uysal
Proje Yöneticisi: Aslı Çalıkoğlu
Statik Projesi: Bürostatik, İlker Ergüneş
Mekanik Projesi: Deniz Proje
Elektrik Projesi: EN Proje
Tesisat Projesi: Deniz Proje
Yangın Güvenlik Danışmanı: Yanmadan Yangınla Mücadele
Fotoğraf: Emre Dörter
Proje Başlangıç Yılı: 2014
Proje Bitiş Yılı: 2018
İnşaat Başlangıç Yılı: 2017
İnşaat Bitiş Yılı: 2019
Arsa Alanı: 3.406 m2
Toplam İnşaat Alanı: 8.332 m2