16/22
Paylaş
Resmi Orjinal Boyutunda Göster
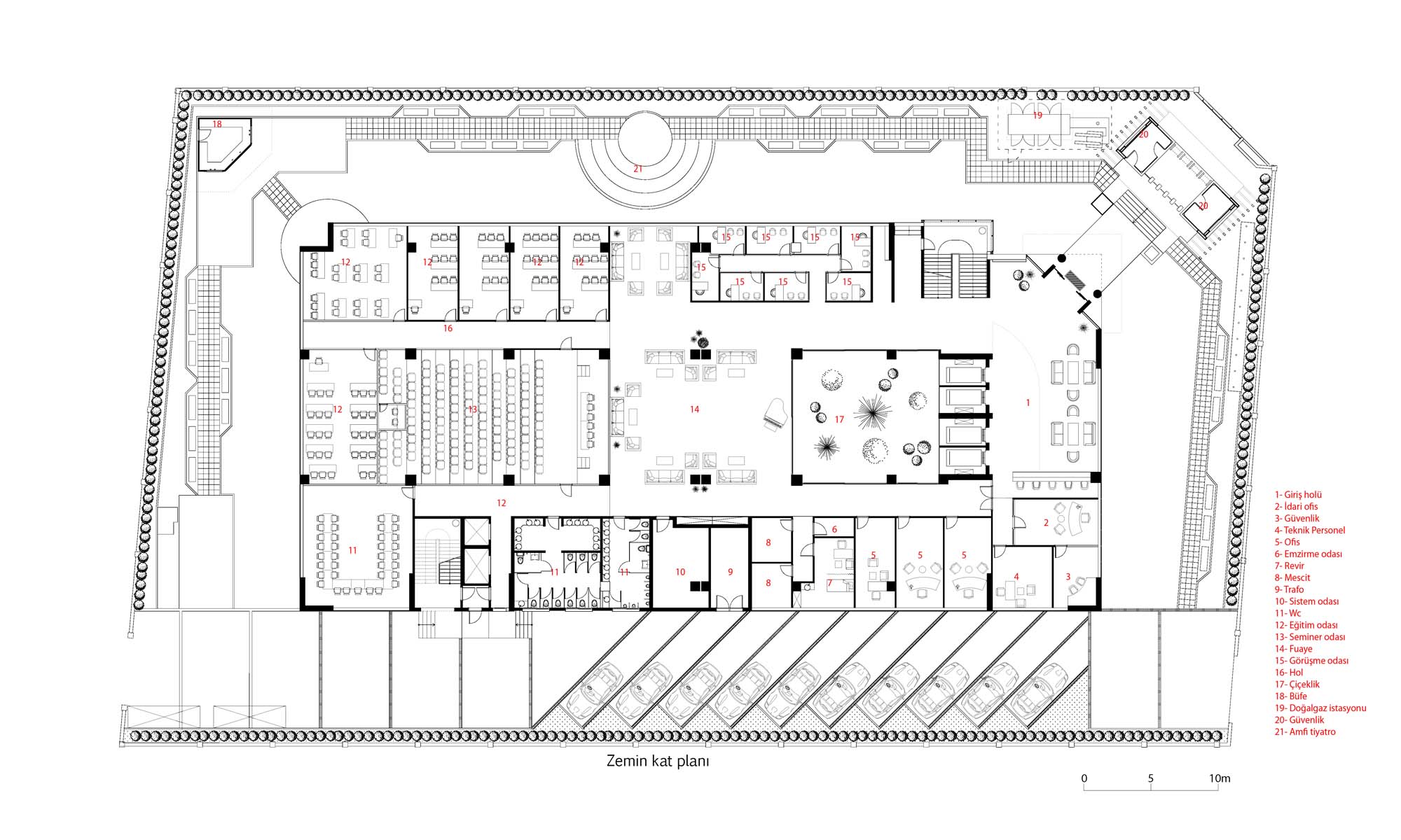
Savatel Ofis Binası
Proje Yeri: İzmir, Çiğli
Proje Ofisi: Arkayın Mimarlık
Proje Tipi: Ofis
Proje Tipi Grubu: Endüstriyel
Tasarım Ekibi: Tufan Arkayın
İşveren: Savatel, Abdurrahman Şenol
Danışman: Yusuf Erkan
Yardımcı: Ali Akgün, Yağmur Hoşkan, Hande Akcan
Ana Yüklenici: Erkan İnşaat
Alt Yüklenici: Es-Ark Yapı, Ercan Ark
Cephe Tasarımı: Rs Aluminyum, Rüstem Günay
Aydınlatma Projesi: Namık Onmuş
Statik Projesi: Meda Mühendislik, Mehmet Ali Akçakaya
Mekanik Projesi: Ersa Mühendislik, Erhan Karahan
Elektrik Projesi: Onmuş Elektrik, Namık Onmuş
Tesisat Projesi: Erhan Karahan, Ersa Mühendislik
Çelik Projesi: Taykon , Taner Telcioğlu
Yangın Tahliye Projesi: Meda Mühendislik
Fotoğraf: Tufan Arkayın
Şantiye Yöneticisi: Alper Kuru
Proje Başlangıç Yılı: 2016, 2016
Proje Bitiş Yılı: 2016
İnşaat Başlangıç Yılı: 2017
İnşaat Bitiş Yılı: 2019
Arsa Alanı: 4.000 m²
Toplam İnşaat Alanı: 10.250 m²