17/22
Paylaş
Resmi Orjinal Boyutunda Göster
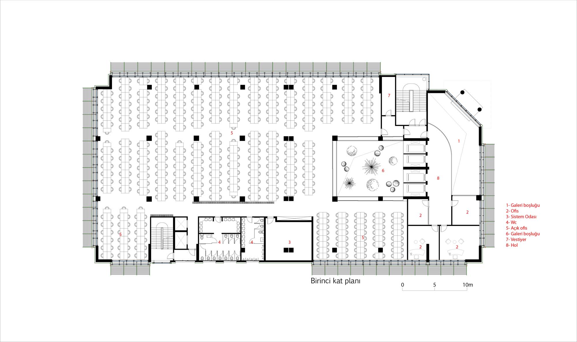
Savatel Ofis Binası
Project Location: İzmir, Çiğli
Project Office: Arkayın Mimarlık
Project Type: Offices
Proje Tipi Grubu: Endüstriyel
Tasarım Ekibi: Tufan Arkayın
Employer: Savatel, Abdurrahman Şenol
Consultant: Yusuf Erkan
Yardımcı: Ali Akgün, Yağmur Hoşkan, Hande Akcan
Ana Yüklenici: Erkan İnşaat
Alt Yüklenici: Es-Ark Yapı, Ercan Ark
Facade Design: Rs Aluminyum, Rüstem Günay
Lighting Project: Namık Onmuş
Structural Project: Meda Mühendislik, Mehmet Ali Akçakaya
Mechanical Project: Ersa Mühendislik, Erhan Karahan
Electrical Project: Onmuş Elektrik, Namık Onmuş
Plumbing Project: Erhan Karahan, Ersa Mühendislik
Çelik Projesi: Taykon , Taner Telcioğlu
Yangın Tahliye Projesi: Meda Mühendislik
Photography: Tufan Arkayın
Construction Site Manager: Alper Kuru
Project Start Date: 2016, 2016
Project End Date: 2016
Construction Start Date: 2017
Construction End Date: 2019
Building Plot Area: 4.000 m²
Total Construction Area: 10.250 m²