15/15
Paylaş
Resmi Orjinal Boyutunda Göster
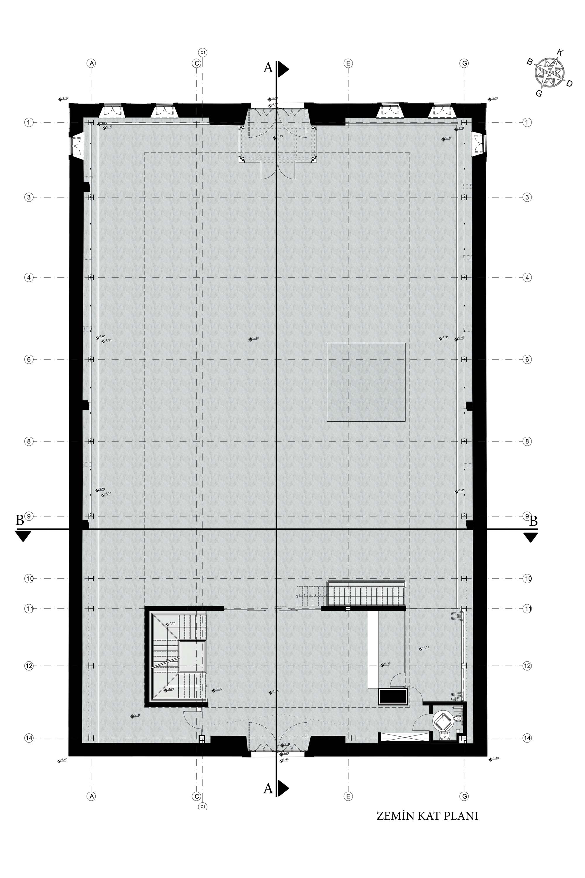
Tantavi Ambarı Restorasyonu
Project Location: Konya, Meram
Project Office: DKN Yapı
Project Type: Exhibition Hall / Gallery
Proje Tipi Grubu: Kültür
Tasarım Ekibi: Erdinç Demirkan
Employer: Meram Belediyesi
Yardımcı: Bilge Nur Karakoçoğlu, Merve Şen
Ana Yüklenici: DKN Yapı
Project Start Date: 2017
Project End Date: 2018
Construction Start Date: 2018
Construction End Date: 2019
Building Plot Area: 1.046 m2
Total Construction Area: 1.550 m2