9/15
Paylaş
Resmi Orjinal Boyutunda Göster
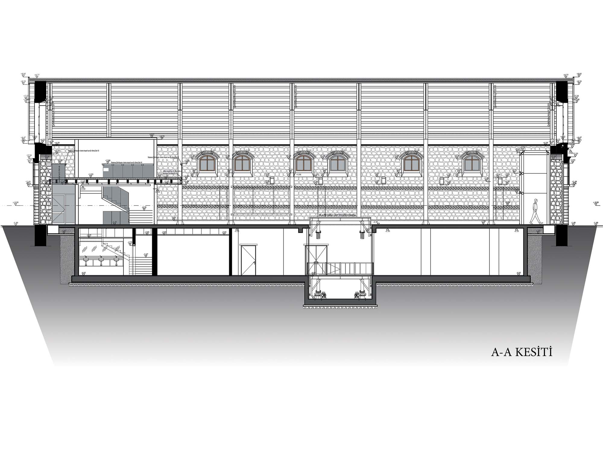
Tantavi Ambarı Restorasyonu
Proje Yeri: Konya, Meram
Proje Ofisi: DKN Yapı
Proje Tipi: Sergi Mekanı / Galeri
Proje Tipi Grubu: Kültür
Tasarım Ekibi: Erdinç Demirkan
İşveren: Meram Belediyesi
Yardımcı: Bilge Nur Karakoçoğlu, Merve Şen
Ana Yüklenici: DKN Yapı
Proje Başlangıç Yılı: 2017
Proje Bitiş Yılı: 2018
İnşaat Başlangıç Yılı: 2018
İnşaat Bitiş Yılı: 2019
Arsa Alanı: 1.046 m2
Toplam İnşaat Alanı: 1.550 m2