14/25
Paylaş
Resmi Orjinal Boyutunda Göster
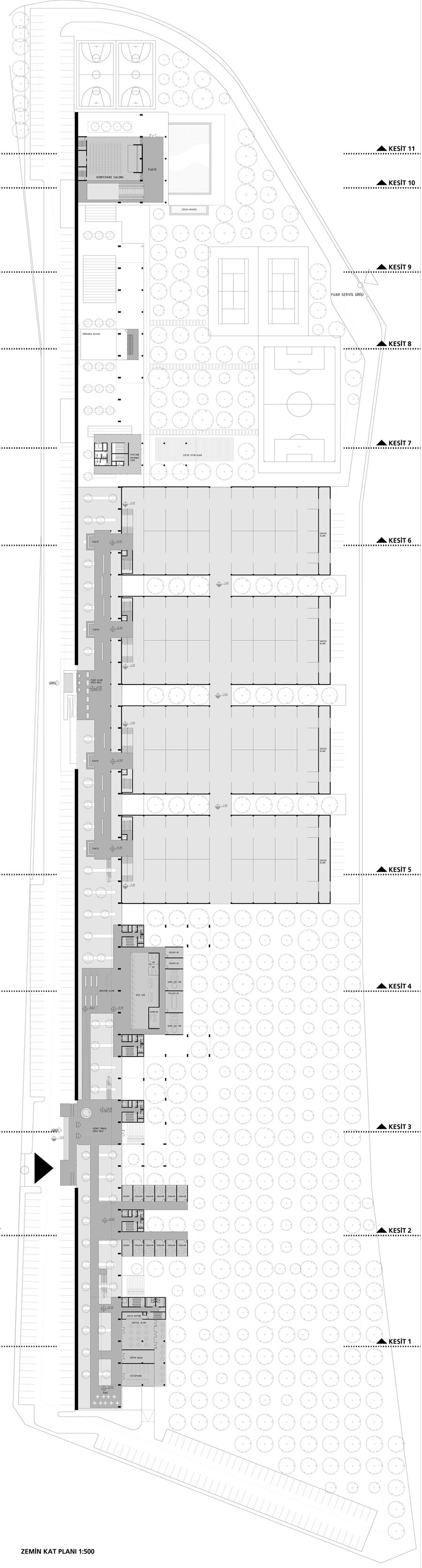
Eskisehir Ticaret Odasi
Proje Yeri: Eskişehir
Proje Ofisi: SO? Mimarlık ve Fikriyat, CAA Studio
Proje Tipi: Ofis, Kongre Merkezi, Sosyal Tesis
Proje Tipi Grubu: 1. Ödül
Tasarım Ekibi: Oral Göktaş, Alişan Çırakoğlu
İşveren: Eskişehir Ticaret Odası
Yardımcı: Arzu Ercan, Emine Derya Ertan, Ilgın Avcı, Zeynep Yapar
Peyzaj Mimarlığı: Ceypeyzaj
Statik Projesi: Parlar Mühendislik
Mekanik Projesi: Beta Mühendislik
Elektrik Projesi: Aykar Mühendislik
Proje Başlangıç Yılı: 2007
Proje Bitiş Yılı: 2008
Arsa Alanı: 60.000m²
Toplam İnşaat Alanı: 60.000m²