15/25
Paylaş
Resmi Orjinal Boyutunda Göster
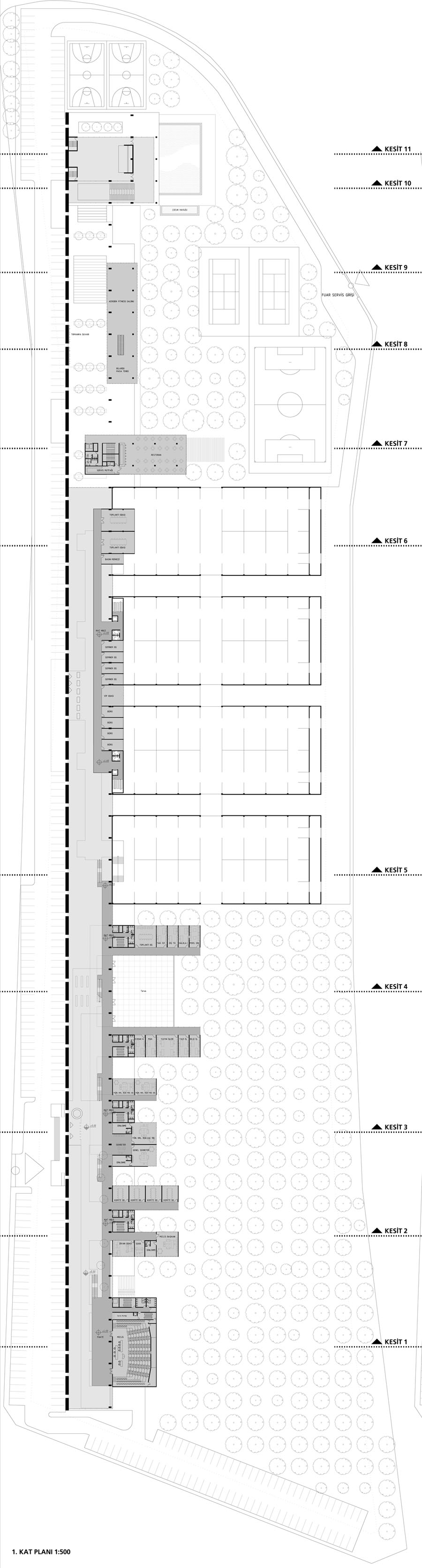
Eskisehir Ticaret Odasi
Project Location: Eskişehir
Project Office: SO? Mimarlık ve Fikriyat, CAA Studio
Project Type: Offices, Convention Center, Social Facility
Proje Tipi Grubu: 1. Ödül
Tasarım Ekibi: Oral Göktaş, Alişan Çırakoğlu
Employer: Eskişehir Ticaret Odası
Yardımcı: Arzu Ercan, Emine Derya Ertan, Ilgın Avcı, Zeynep Yapar
Peyzaj Mimarlığı: Ceypeyzaj
Structural Project: Parlar Mühendislik
Mechanical Project: Beta Mühendislik
Electrical Project: Aykar Mühendislik
Project Start Date: 2007
Project End Date: 2008
Building Plot Area: 60.000m²
Total Construction Area: 60.000m²