24/34
Paylaş
Resmi Orjinal Boyutunda Göster
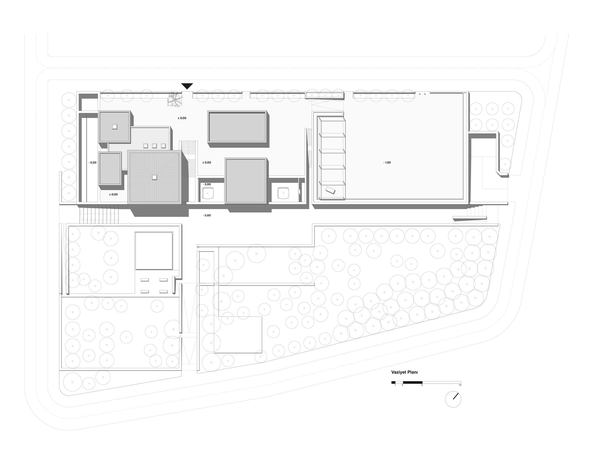
Beylikdüzü Fatma Ana Cemevi ve Kültür Merkezi
Project Location: İstanbul, Beylikdüzü
Project Office: 9016 Mimarlık
Project Type: Cem House
Proje Tipi Grubu: Dini
Tasarım Ekibi: Bilge Altuğ, Mehmet Metin Polat, Bengi Altuğ, Gökhan Turan, Ata Kurt, Gizem Özer, Ecem Özden
Employer: Beylikdüzü Belediyesi
Peyzaj Mimarlığı: Merve İmer, Doğan Onur Araz
Structural Project: OTS Proje Müşavirlik
Mechanical Project: Çilingiroğlu Mühendislik
Electrical Project: Enkom Mühendislik
Acoustic Consultant: Proplan Proje
Photography: Yercekim Mimari Fotograf, Engin Gerçek
Architectural Supervision: Mehmet Metin Polat, Bilge Altuğ
Project Start Date: 2016
Project End Date: 2017
Construction Start Date: 2019
Construction End Date: 2020
Building Plot Area: 7.800 m²
Total Construction Area: 2.850 m²