25/34
Paylaş
Resmi Orjinal Boyutunda Göster
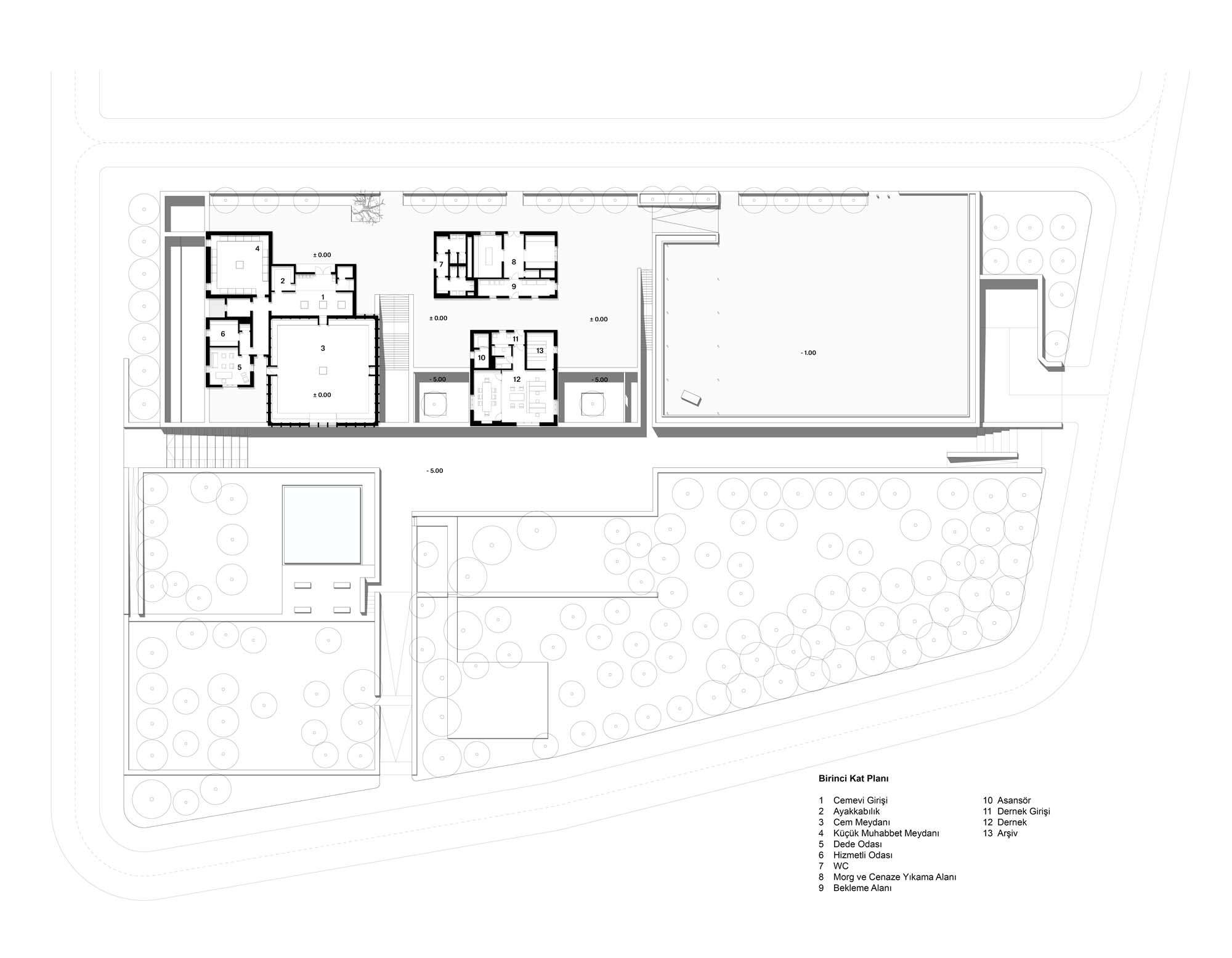
Beylikdüzü Fatma Ana Cemevi ve Kültür Merkezi
Proje Yeri: İstanbul, Beylikdüzü
Proje Ofisi: 9016 Mimarlık
Proje Tipi: Cemevi
Proje Tipi Grubu: Dini
Tasarım Ekibi: Bilge Altuğ, Mehmet Metin Polat, Bengi Altuğ, Gökhan Turan, Ata Kurt, Gizem Özer, Ecem Özden
İşveren: Beylikdüzü Belediyesi
Peyzaj Mimarlığı: Merve İmer, Doğan Onur Araz
Statik Projesi: OTS Proje Müşavirlik
Mekanik Projesi: Çilingiroğlu Mühendislik
Elektrik Projesi: Enkom Mühendislik
Akustik Danışmanı: Proplan Proje
Fotoğraf: Yercekim Mimari Fotograf, Engin Gerçek
Mimari Mesleki Kontrollük: Mehmet Metin Polat, Bilge Altuğ
Proje Başlangıç Yılı: 2016
Proje Bitiş Yılı: 2017
İnşaat Başlangıç Yılı: 2019
İnşaat Bitiş Yılı: 2020
Arsa Alanı: 7.800 m²
Toplam İnşaat Alanı: 2.850 m²