22/35
Paylaş
Resmi Orjinal Boyutunda Göster
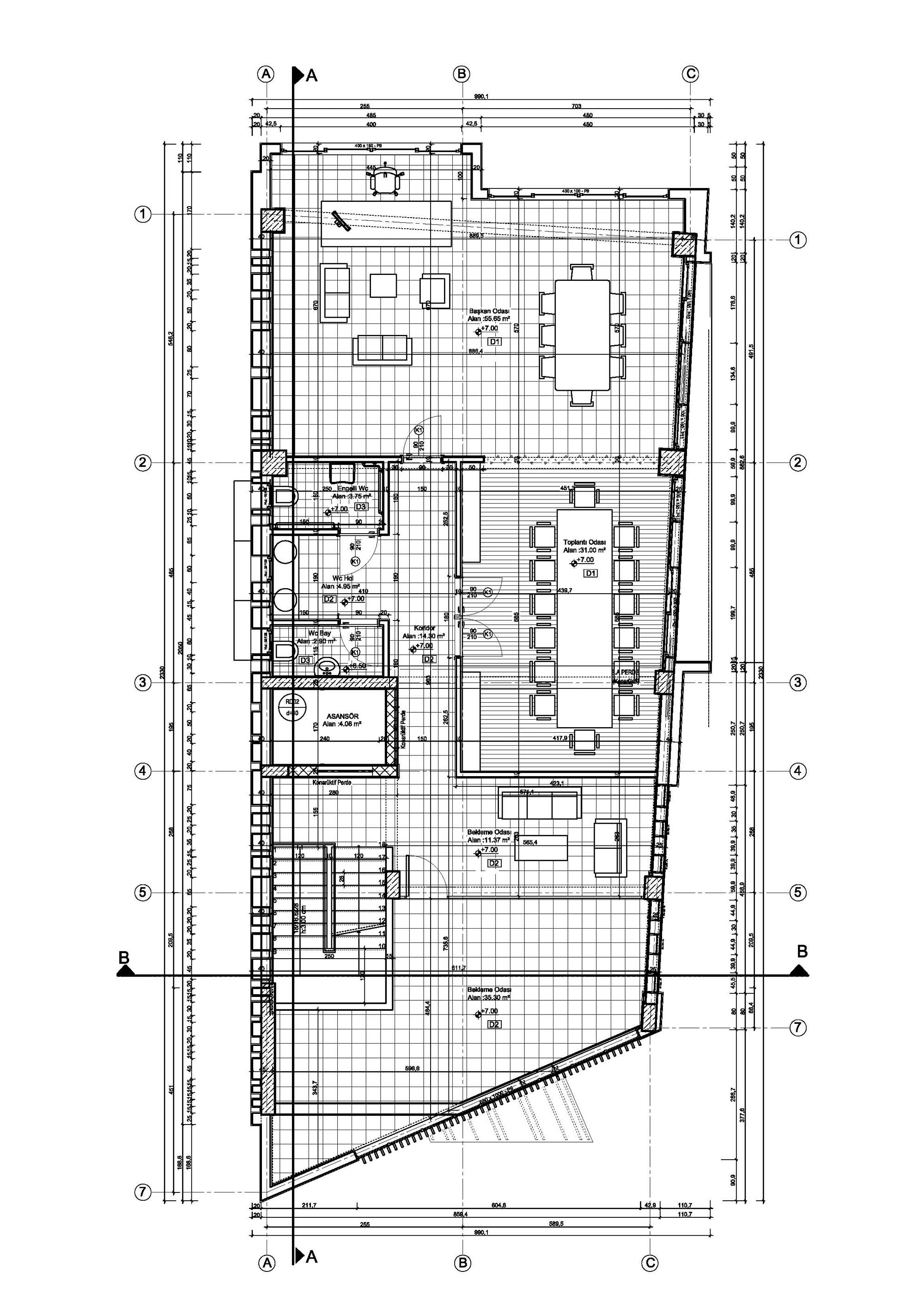
Mimarlar Odası Denizli Şubesi Hizmet Binası
Proje Yeri: Denizli, Merkezefendi
Proje Ofisi: Küp Tasarım Ofisi
Proje Tipi: Ofis
Proje Tipi Grubu: Kamu
Tasarım Ekibi: Ömer Çelikkol, Sevgi Erkli
İşveren: TMMOB Mimarlar Odası Denizli Şubesi, TMMOB Mimarlar Odası Denizli Şubesi
Danışman: İrem Selçuk, Ceyda Turan
Ana Yüklenici: TMMOB Mimarlar Odası Denizli Şubesi
Proje Yöneticisi: Ömer Çelikkol
Statik Projesi: Sait Yaymanoğlu
Mekanik Projesi: Cüneyt Özsoy
Elektrik Projesi: Hasan Hüseyin Sicim
Fotoğraf: Cihan Kendidoğan
Proje Başlangıç Yılı: 2013
Proje Bitiş Yılı: 2015
İnşaat Başlangıç Yılı: 2017
İnşaat Bitiş Yılı: 2020
Arsa Alanı: 458 m²
Toplam İnşaat Alanı: 763 m²