30/35
Paylaş
Resmi Orjinal Boyutunda Göster
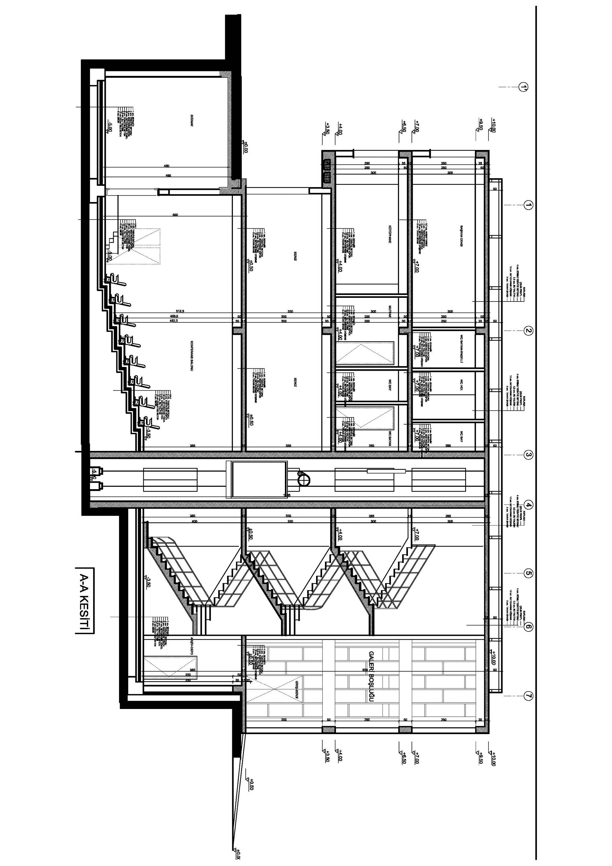
Mimarlar Odası Denizli Şubesi Hizmet Binası
Project Location: Denizli, Merkezefendi
Project Office: Küp Tasarım Ofisi
Project Type: Offices
Proje Tipi Grubu: Kamu
Tasarım Ekibi: Ömer Çelikkol, Sevgi Erkli
Employer: TMMOB Mimarlar Odası Denizli Şubesi, TMMOB Mimarlar Odası Denizli Şubesi
Consultant: İrem Selçuk, Ceyda Turan
Ana Yüklenici: TMMOB Mimarlar Odası Denizli Şubesi
Projcet Manager: Ömer Çelikkol
Structural Project: Sait Yaymanoğlu
Mechanical Project: Cüneyt Özsoy
Electrical Project: Hasan Hüseyin Sicim
Photography: Cihan Kendidoğan
Project Start Date: 2013
Project End Date: 2015
Construction Start Date: 2017
Construction End Date: 2020
Building Plot Area: 458 m²
Total Construction Area: 763 m²