17/21
Paylaş
Resmi Orjinal Boyutunda Göster
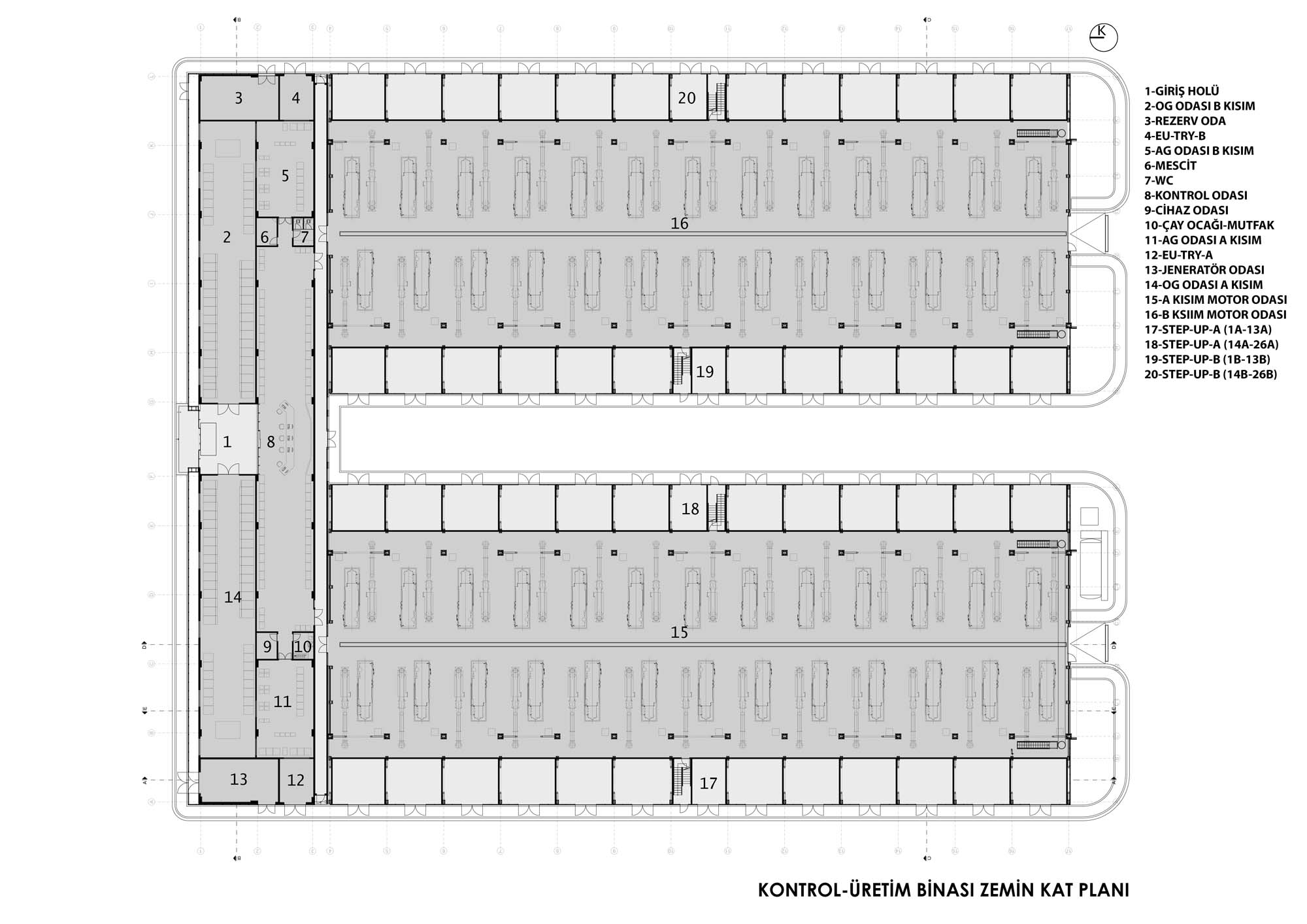
Seymen Çöp Gazından Enerji Üretim Tesisi
Proje Yeri: İstanbul, Silivri
Proje Ofisi: Gülnar Ocakdan Architecture (GOA)
Proje Tipi: Diğer Endüstri Yapıları
Proje Tipi Grubu: Endüstriyel
Tasarım Ekibi: Gülnar Ocakdan, Serkan Yetgin
İşveren: İstanbul Enerji AŞ
Yardımcı: Büşra Almaz, Turan Altıntaş
Peyzaj Mimarlığı: Doğan Onur Araz
Statik Projesi: Enes Mühendislik
Mekanik Projesi: Ascon Mühendislik
Elektrik Projesi: Zenith Proje
Proje Başlangıç Yılı: 2017
Proje Bitiş Yılı: 2018
İnşaat Başlangıç Yılı: 2019
İnşaat Bitiş Yılı: 2020
Arsa Alanı: 56.000 m2
Toplam İnşaat Alanı: 15.000 m2