19/21
Paylaş
Resmi Orjinal Boyutunda Göster
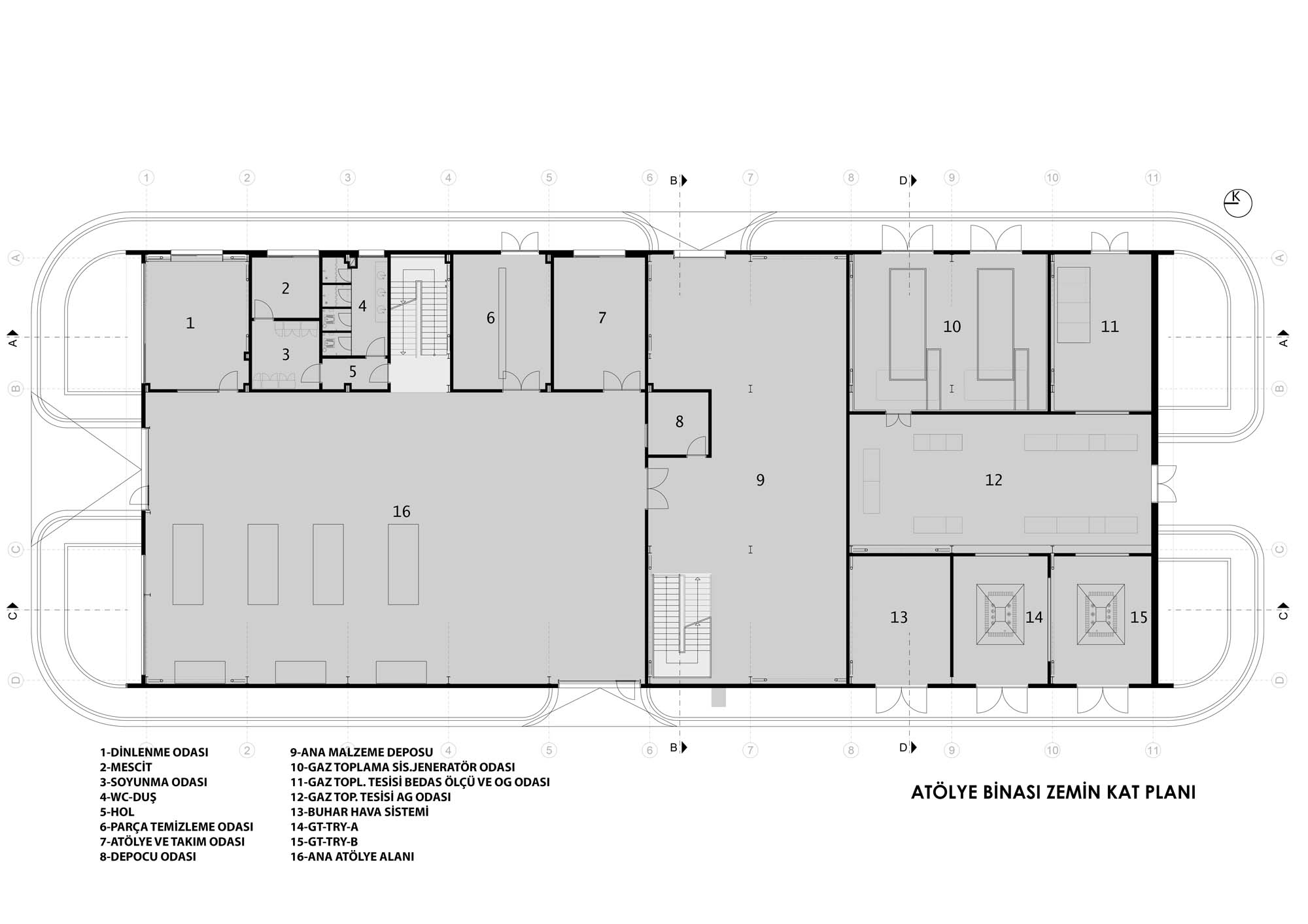
Seymen Çöp Gazından Enerji Üretim Tesisi
Project Location: İstanbul, Silivri
Project Office: Gülnar Ocakdan Architecture (GOA)
Project Type: Other Industrial Buildings
Proje Tipi Grubu: Endüstriyel
Tasarım Ekibi: Gülnar Ocakdan, Serkan Yetgin
Employer: İstanbul Enerji AŞ
Yardımcı: Büşra Almaz, Turan Altıntaş
Peyzaj Mimarlığı: Doğan Onur Araz
Structural Project: Enes Mühendislik
Mechanical Project: Ascon Mühendislik
Electrical Project: Zenith Proje
Project Start Date: 2017
Project End Date: 2018
Construction Start Date: 2019
Construction End Date: 2020
Building Plot Area: 56.000 m2
Total Construction Area: 15.000 m2