18/24
Paylaş
Resmi Orjinal Boyutunda Göster
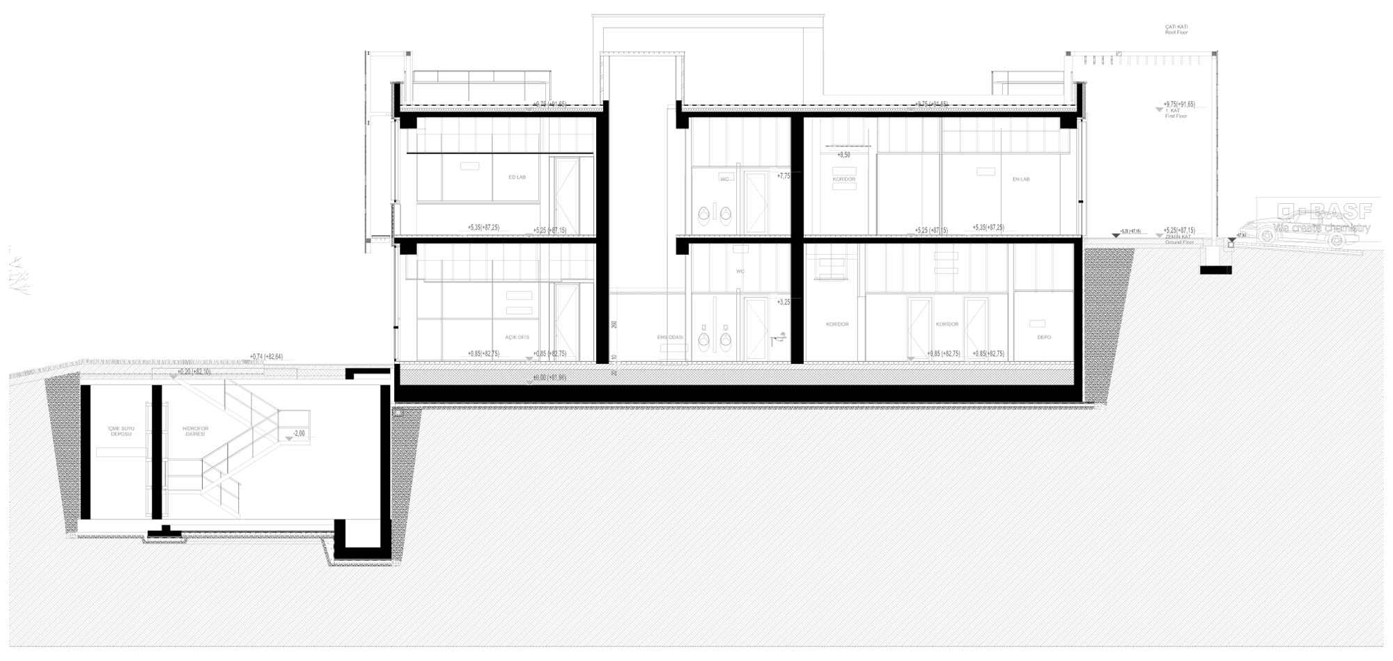
BASF İnovasyon Merkezi
Proje Yeri: İstanbul, Pendik
Proje Ofisi: TeCe Mimarlık
Proje Tipi: Ofis, Ar-Ge Binası
Proje Tipi Grubu: Ticari
Tasarım Ekibi: Tülin Hadi, Cem İlhan, Hande Sermet, Sezin Beldağ, Su Kapkın
İşveren: BASF Türkiye
Ana Yüklenici: DİEM Mühendislik Mimarlık
Peyzaj Mimarlığı: Ceypeyzaj
Proje Yöneticisi: TIME Proje Yönetimi
Aydınlatma Projesi: LAB1 Aydınlatma Tasarımı
Statik Projesi: PROBİ
Mekanik Projesi: ENAR Mühendislik
Elektrik Projesi: Enkom Mühendislik
Altyapı Projesi: Köroğlu Mühendisllik
Akustik Danışmanı: MEA Akustik
Fotoğraf: Emre Mollaoğlu, Cem İlhan
Proje Başlangıç Yılı: 2018
Proje Bitiş Yılı: 2019
İnşaat Başlangıç Yılı: 2019
İnşaat Bitiş Yılı: 2020
Arsa Alanı: 296.710 m2
Toplam İnşaat Alanı: 3.300 m²