19/24
Paylaş
Resmi Orjinal Boyutunda Göster
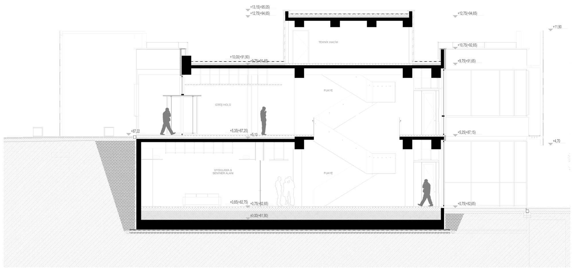
BASF İnovasyon Merkezi
Project Location: İstanbul, Pendik
Project Office: TeCe Mimarlık
Project Type: Offices, R&D Building
Proje Tipi Grubu: Commercial
Tasarım Ekibi: Tülin Hadi, Cem İlhan, Hande Sermet, Sezin Beldağ, Su Kapkın
Employer: BASF Türkiye
Ana Yüklenici: DİEM Mühendislik Mimarlık
Peyzaj Mimarlığı: Ceypeyzaj
Projcet Manager: TIME Proje Yönetimi
Lighting Project: LAB1 Aydınlatma Tasarımı
Structural Project: PROBİ
Mechanical Project: ENAR Mühendislik
Electrical Project: Enkom Mühendislik
Altyapı Projesi: Köroğlu Mühendisllik
Acoustic Consultant: MEA Akustik
Photography: Emre Mollaoğlu, Cem İlhan
Project Start Date: 2018
Project End Date: 2019
Construction Start Date: 2019
Construction End Date: 2020
Building Plot Area: 296.710 m2
Total Construction Area: 3.300 m²