33/40
Paylaş
Resmi Orjinal Boyutunda Göster
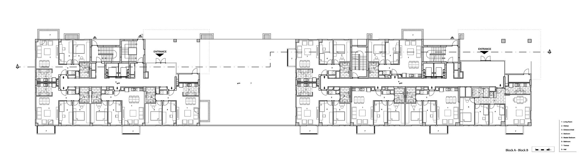
Kiptaş Silivri 4 Etap Sosyal Konutları
Project Location: İstanbul, Silivri
Project Office: PDG Mimarlar
Project Type: Housing Complex
Proje Tipi Grubu: Konut
Tasarım Ekibi: Murat Şahin, Cengiz Gültek, Eylem İşler Kahraman, Ayhan Öçkaç, Can Özkan, Deniz Yıldırım, Anna Cojocar, Kiptaş Proje Etüd Müdürlüğü, Büşra Nur Topyıldız
Employer: KİPTAŞ, İstanbul Büyükşehir Belediyesi
Projcet Manager: Murat Şahin
Construction Start Date: 2020
Building Plot Area: 95.318 m²
Total Construction Area: 155.323 m²