36/40
Paylaş
Resmi Orjinal Boyutunda Göster
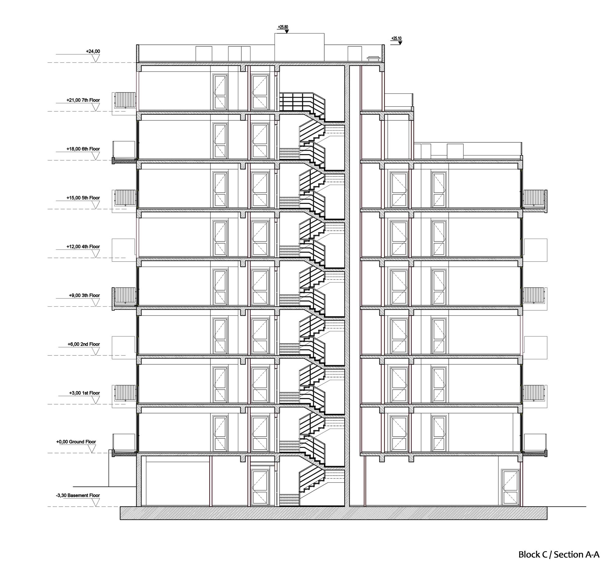
Kiptaş Silivri 4 Etap Sosyal Konutları
Proje Yeri: İstanbul, Silivri
Proje Ofisi: PDG Mimarlar
Proje Tipi: Konut Sitesi / Grubu
Proje Tipi Grubu: Konut
Tasarım Ekibi: Murat Şahin, Cengiz Gültek, Eylem İşler Kahraman, Ayhan Öçkaç, Can Özkan, Deniz Yıldırım, Anna Cojocar, Kiptaş Proje Etüd Müdürlüğü, Büşra Nur Topyıldız
İşveren: KİPTAŞ, İstanbul Büyükşehir Belediyesi
Proje Yöneticisi: Murat Şahin
İnşaat Başlangıç Yılı: 2020
Arsa Alanı: 95.318 m²
Toplam İnşaat Alanı: 155.323 m²