14/21
Paylaş
Resmi Orjinal Boyutunda Göster
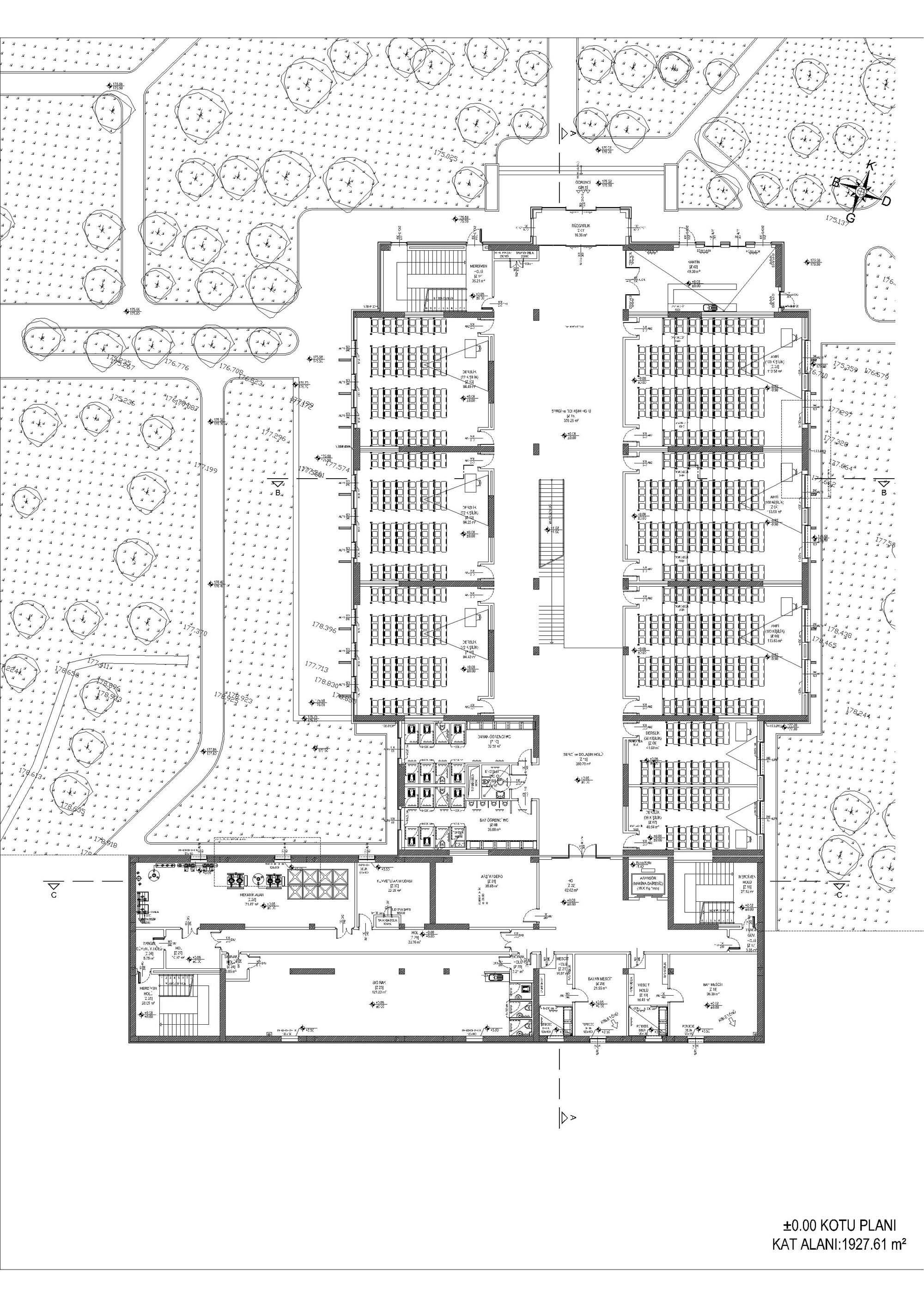
Bursa Teknik Üniversitesi B Blok Eğitim Binası
Project Location: Bursa
Project Office: EBC Mimarlık Proje
Project Type: Higher Education Building
Proje Tipi Grubu: Eğitim
Tasarım Ekibi: Ekrem Bahadır Çalışkan
Employer: Bursa Teknik Üniversitesi Yapı İşleri ve Teknik Daire Başkanlığı
Yardımcı: Merve Dadanlar, Fatih Zorer
Project Start Date: 2019
Project End Date: 2019
Construction Start Date: 2019
Construction End Date: 2020
Building Plot Area: 9.000 m²
Total Construction Area: 6.700 m²