15/21
Paylaş
Resmi Orjinal Boyutunda Göster
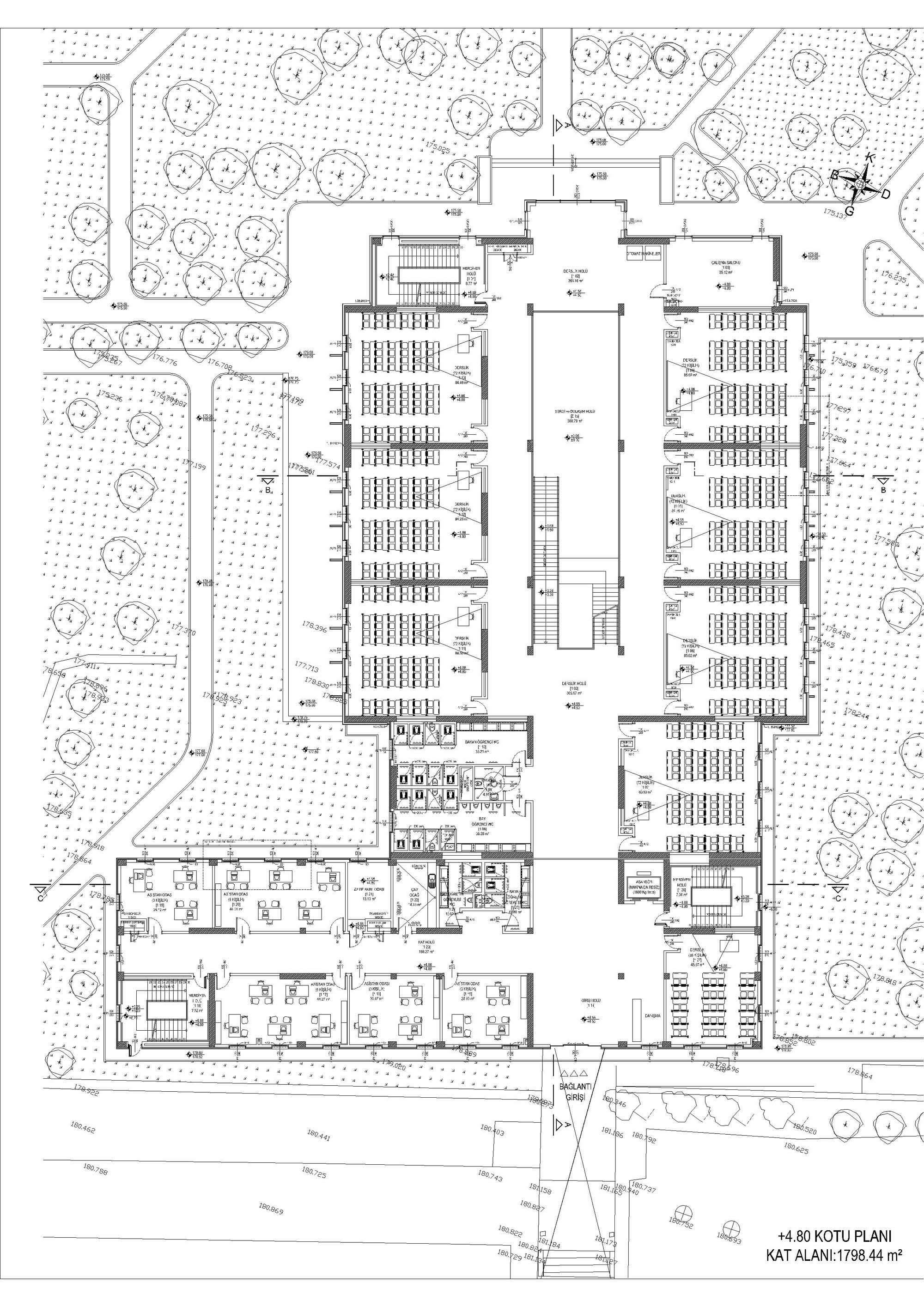
Bursa Teknik Üniversitesi B Blok Eğitim Binası
Proje Yeri: Bursa
Proje Ofisi: EBC Mimarlık Proje
Proje Tipi: Yüksek Öğretim Yapısı
Proje Tipi Grubu: Eğitim
Tasarım Ekibi: Ekrem Bahadır Çalışkan
İşveren: Bursa Teknik Üniversitesi Yapı İşleri ve Teknik Daire Başkanlığı
Yardımcı: Merve Dadanlar, Fatih Zorer
Proje Başlangıç Yılı: 2019
Proje Bitiş Yılı: 2019
İnşaat Başlangıç Yılı: 2019
İnşaat Bitiş Yılı: 2020
Arsa Alanı: 9.000 m²
Toplam İnşaat Alanı: 6.700 m²