22/29
Paylaş
Resmi Orjinal Boyutunda Göster
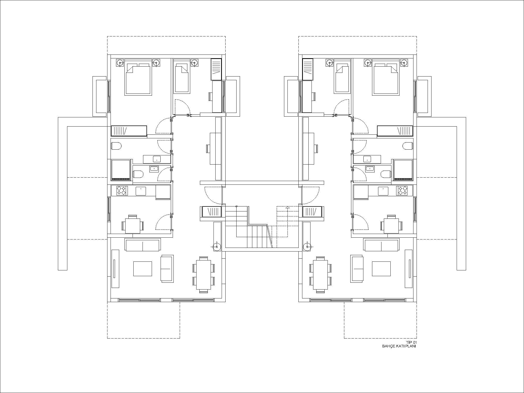
Latus Park Konutları
Project Location: Muğla, Menteşe
Project Office: NTT Mimarlık
Project Type: Housing Complex
Proje Tipi Grubu: Konut
Tasarım Ekibi: Ali Yönet, İbrahim Canseven
Employer: İNTA İnşaat
Ana Yüklenici: İNTA İnşaat
Structural Project: Umut Güven
Mechanical Project: Özyurt Mühendislik
Electrical Project: Gündüz Pirinçcioğlu
Photography: Gürkan Akay
Construction Site Manager: Ömer Aydın, Mehmet Aker, Cemal Döğer
Project Start Date: 2016
Project End Date: 2017
Construction Start Date: 2017
Construction End Date: 2020
Building Plot Area: 9.581 m²
Total Construction Area: 6.290 m²