25/29
Paylaş
Resmi Orjinal Boyutunda Göster
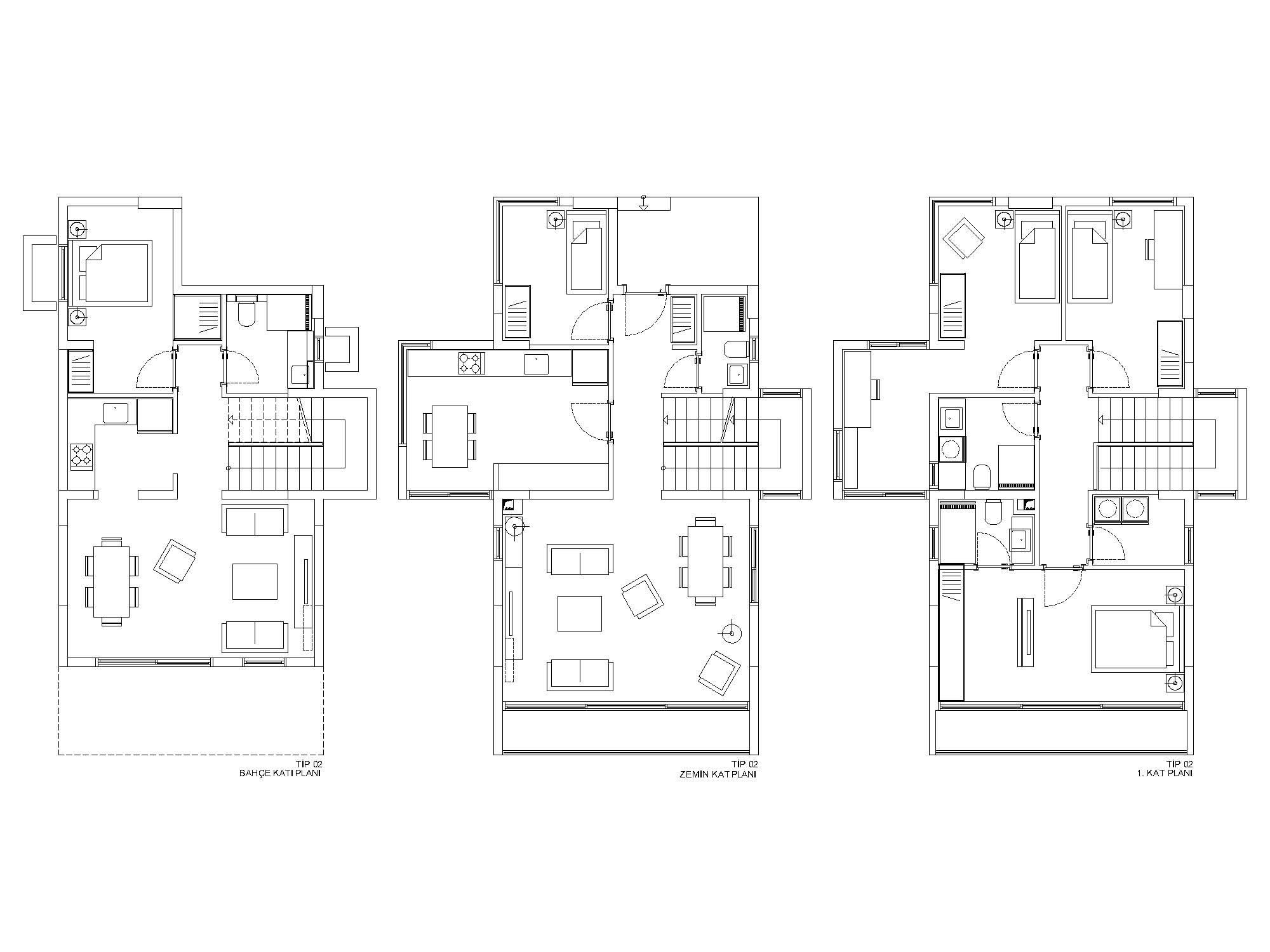
Latus Park Konutları
Proje Yeri: Muğla, Menteşe
Proje Ofisi: NTT Mimarlık
Proje Tipi: Konut Sitesi / Grubu
Proje Tipi Grubu: Konut
Tasarım Ekibi: Ali Yönet, İbrahim Canseven
İşveren: İNTA İnşaat
Ana Yüklenici: İNTA İnşaat
Statik Projesi: Umut Güven
Mekanik Projesi: Özyurt Mühendislik
Elektrik Projesi: Gündüz Pirinçcioğlu
Fotoğraf: Gürkan Akay
Şantiye Yöneticisi: Ömer Aydın, Mehmet Aker, Cemal Döğer
Proje Başlangıç Yılı: 2016
Proje Bitiş Yılı: 2017
İnşaat Başlangıç Yılı: 2017
İnşaat Bitiş Yılı: 2020
Arsa Alanı: 9.581 m²
Toplam İnşaat Alanı: 6.290 m²