22/29
Paylaş
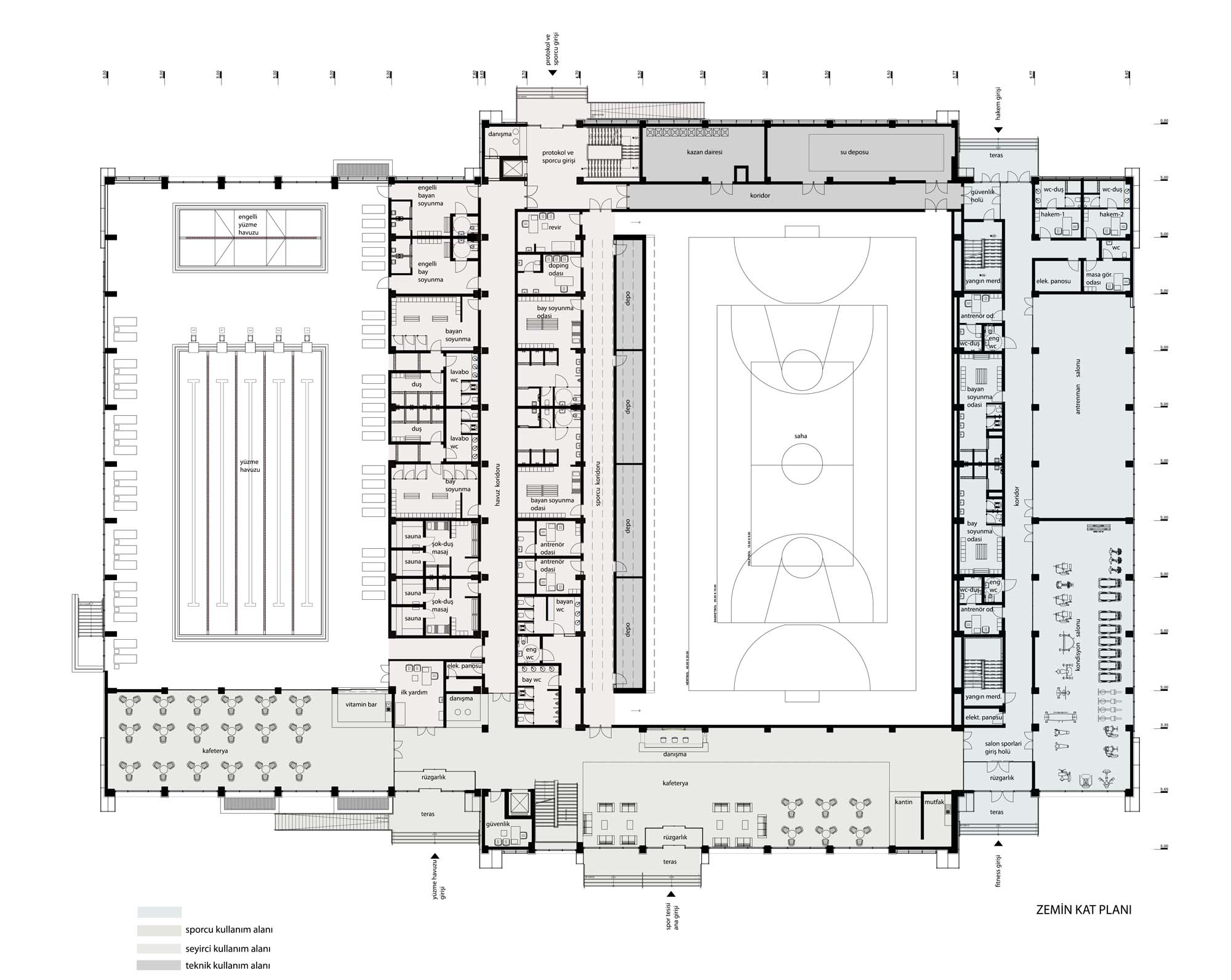
Resmi Orjinal Boyutunda Göster
Niğde Ömer Halisdemir Üniversitesi Kapalı Spor Kompleksi
Proje Yeri: Niğde, Bor
Proje Ofisi: Arkinom Mimarlık
Proje Tipi: Spor Salonu
Proje Tipi Grubu: Rekreasyon / Spor
Tasarım Ekibi: Erdem Dokuzer, Cafer Mustafa Çetindaş
İşveren: Niğde Üniversitesi Yapı İşleri Daire Başkanlığı
Yardımcı: Neşe Dokuzer, Melih Ünlüler
Ana Yüklenici: AK-KOÇ İnşaat
Proje Yöneticisi: Erdem Dokuzer
Statik Projesi: SCİ Mühendislik
Mekanik Projesi: 2Y Mekanik
Elektrik Projesi: Sistemli Mühendislik
Tesisat Projesi: 2Y Mekanik
Çelik Projesi: SCİ Mühendislik
Altyapı Projesi: 2Y Mekanik
Fotoğraf: Şahika Erdoğmuş
Şantiye Yöneticisi: Umut Eroğlu, Kadir Gök
Proje Başlangıç Yılı: 2014
Proje Bitiş Yılı: 2015
İnşaat Başlangıç Yılı: 2015
İnşaat Bitiş Yılı: 2020
Arsa Alanı: 17.306 m2
Toplam İnşaat Alanı: 10.500 m2