23/29
Paylaş
Resmi Orjinal Boyutunda Göster
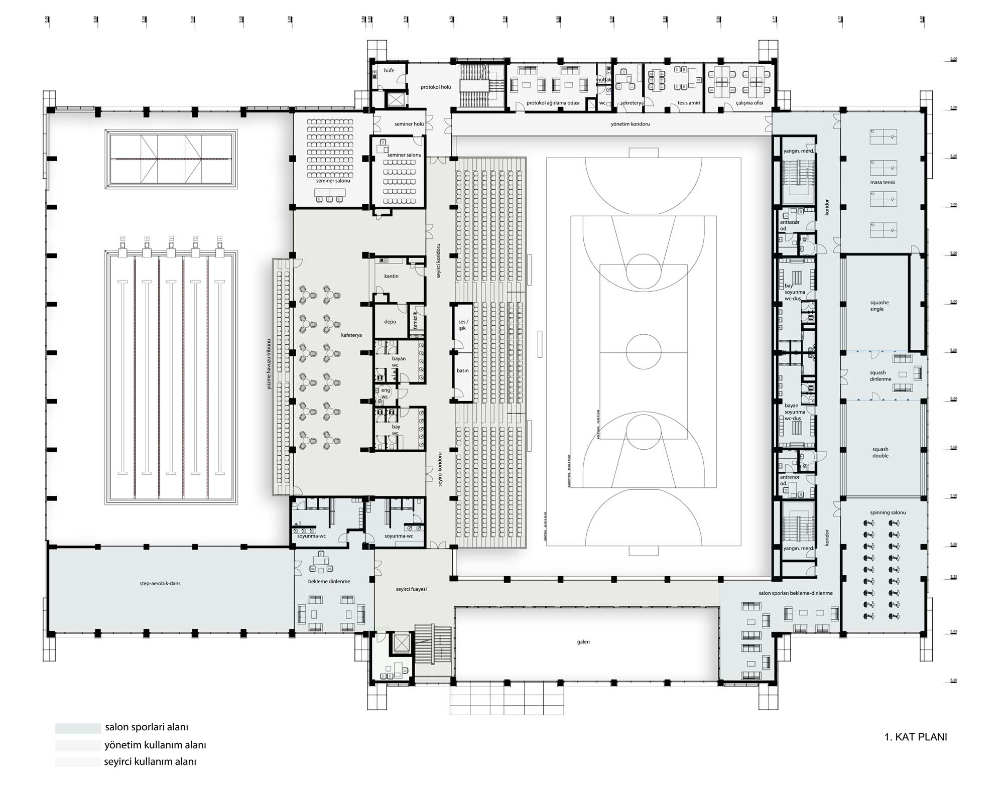
Niğde Ömer Halisdemir Üniversitesi Kapalı Spor Kompleksi
Project Location: Niğde, Bor
Project Office: Arkinom Mimarlık
Project Type: Sports Hall
Proje Tipi Grubu: Recreation / Sports
Tasarım Ekibi: Erdem Dokuzer, Cafer Mustafa Çetindaş
Employer: Niğde Üniversitesi Yapı İşleri Daire Başkanlığı
Yardımcı: Neşe Dokuzer, Melih Ünlüler
Ana Yüklenici: AK-KOÇ İnşaat
Projcet Manager: Erdem Dokuzer
Structural Project: SCİ Mühendislik
Mechanical Project: 2Y Mekanik
Electrical Project: Sistemli Mühendislik
Plumbing Project: 2Y Mekanik
Çelik Projesi: SCİ Mühendislik
Altyapı Projesi: 2Y Mekanik
Photography: Şahika Erdoğmuş
Construction Site Manager: Umut Eroğlu, Kadir Gök
Project Start Date: 2014
Project End Date: 2015
Construction Start Date: 2015
Construction End Date: 2020
Building Plot Area: 17.306 m2
Total Construction Area: 10.500 m2