8/21
Paylaş
Resmi Orjinal Boyutunda Göster
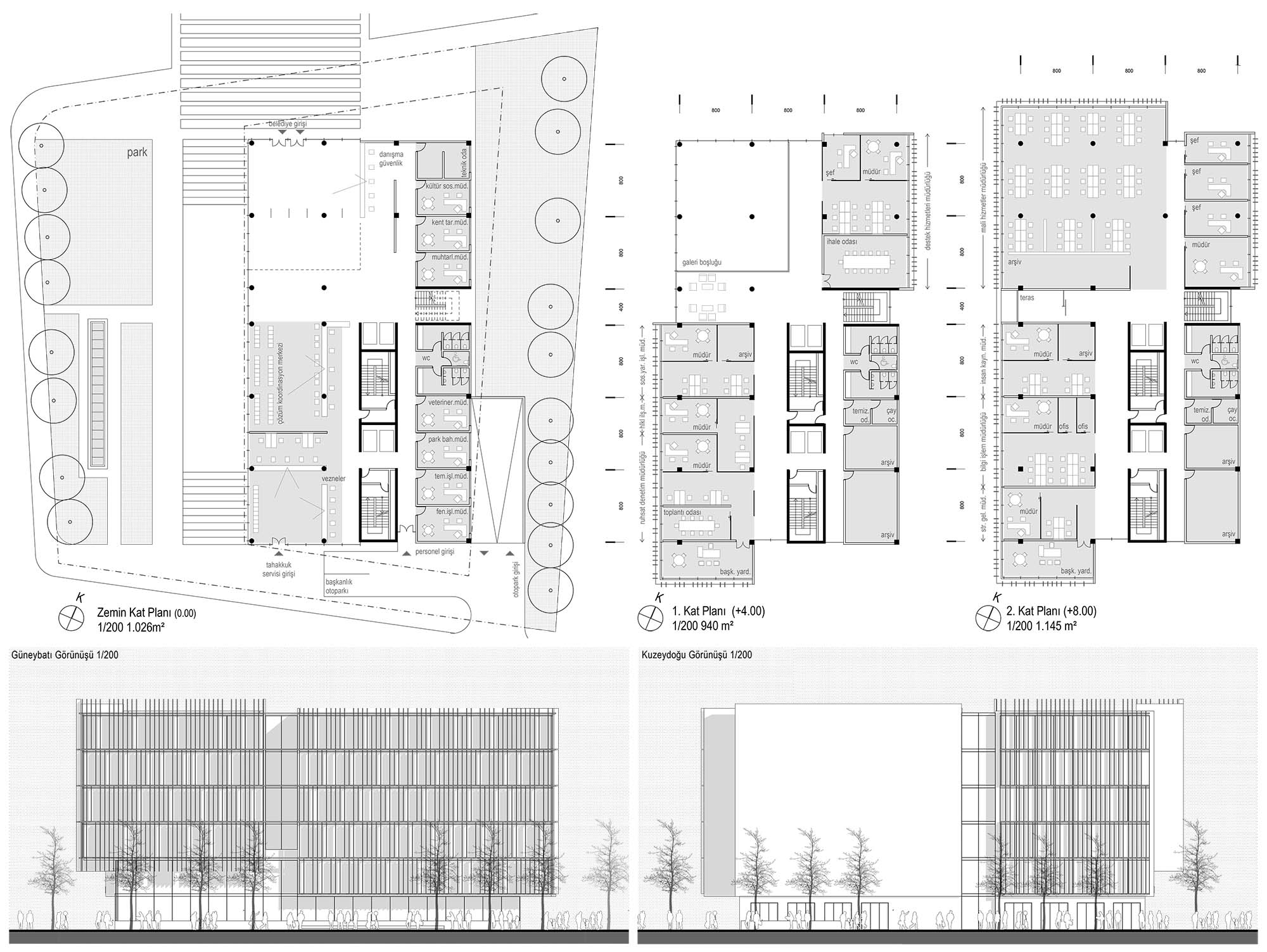
2. Ödül Torbalı Belediyesi Belediye Hizmet Binası Pazaryeri ve Otopark ile Yakın Çevresi Ulusal Mimari Proje Yarışması
Proje Yeri: İzmir, Torbalı
Proje Ofisi: OfficePAN Mimarlık, Kolektif Mimarlar
Proje Tipi: Belediye Hizmet Binası
Proje Tipi Grubu: 2. Ödül
Tasarım Ekibi: Sıddık Güvendi, Cihan Sevindik
Danışman: Oya Eskin Güvendi, Barış Ekmekçi, Özge Müberra Akyüz, Mehmet Ali Yılmaz, Mehmet Kaya, Cihan Onmuş
Yardımcı: Zehra Yeğin, Kerem Karacaoğlu
Proje Başlangıç Yılı: 2020
Proje Bitiş Yılı: 2020