9/21
Paylaş
Resmi Orjinal Boyutunda Göster
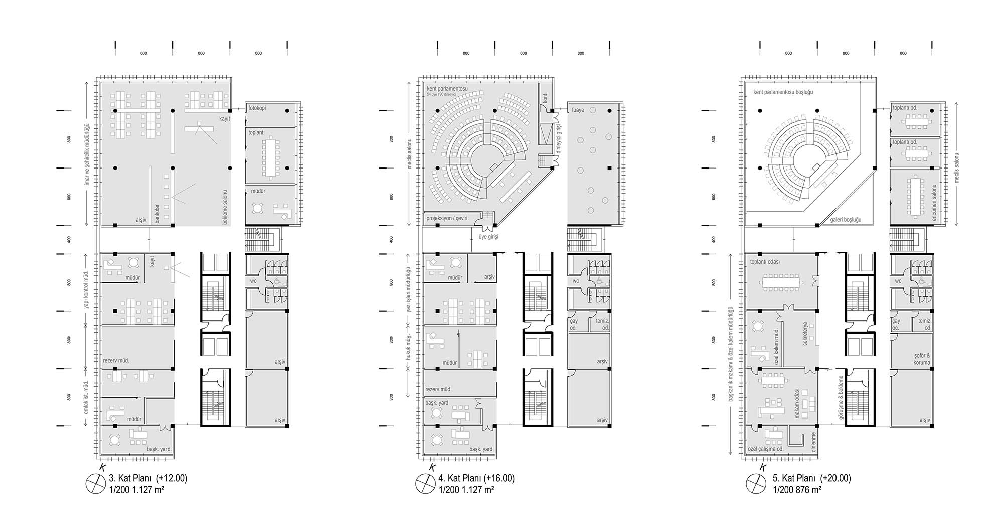
2. Ödül Torbalı Belediyesi Belediye Hizmet Binası Pazaryeri ve Otopark ile Yakın Çevresi Ulusal Mimari Proje Yarışması
Project Location: İzmir, Torbalı
Project Office: OfficePAN Mimarlık, Kolektif Mimarlar
Project Type: Belediye Hizmet Binası
Proje Tipi Grubu: 2. Ödül
Tasarım Ekibi: Sıddık Güvendi, Cihan Sevindik
Consultant: Oya Eskin Güvendi, Barış Ekmekçi, Özge Müberra Akyüz, Mehmet Ali Yılmaz, Mehmet Kaya, Cihan Onmuş
Yardımcı: Zehra Yeğin, Kerem Karacaoğlu
Project Start Date: 2020
Project End Date: 2020