15/15
Paylaş
Resmi Orjinal Boyutunda Göster
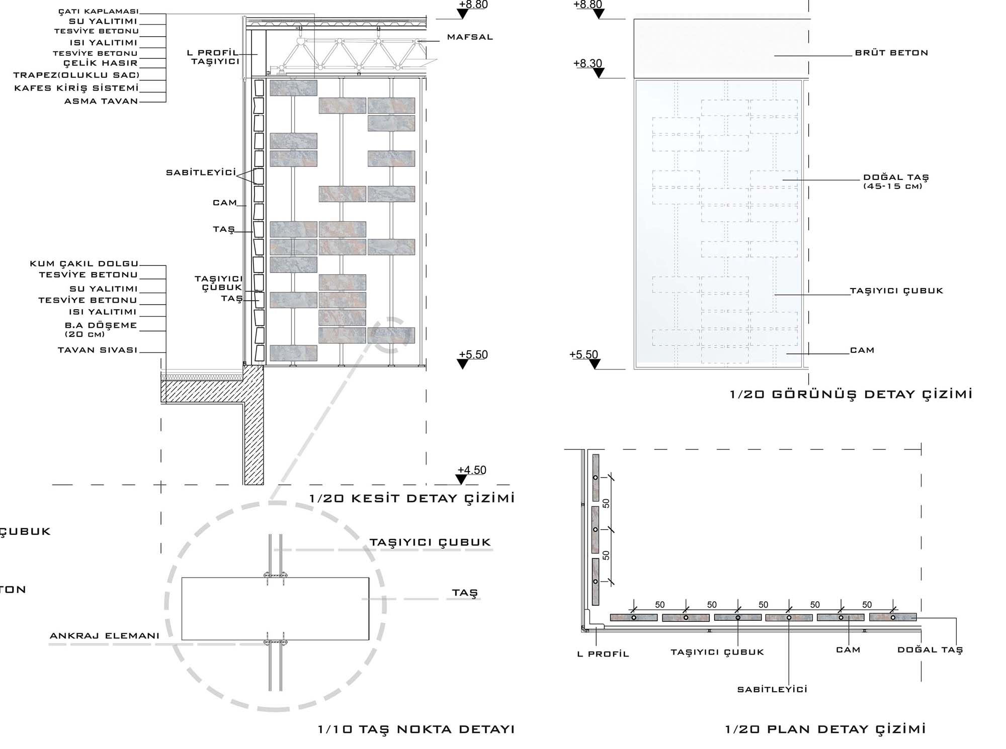
Katılımcı, Ömer Özeren, Ahmet E. Dinçer, Z. Osman Yağcı, Mimar Sinan Müzesi ve Mimarlık Merkezi Ulusal Mimari Proje Yarışması
Project Location: Kayseri
Project Type: Museum
Proje Tipi Grubu: Katılımcı
Tasarım Ekibi: Ömer Özeren, Ahmet E. Dinçer, Z. Osman Yağcı
Structural Project: İsmail Er
Project Start Date: 2021