5/15
Paylaş
Resmi Orjinal Boyutunda Göster
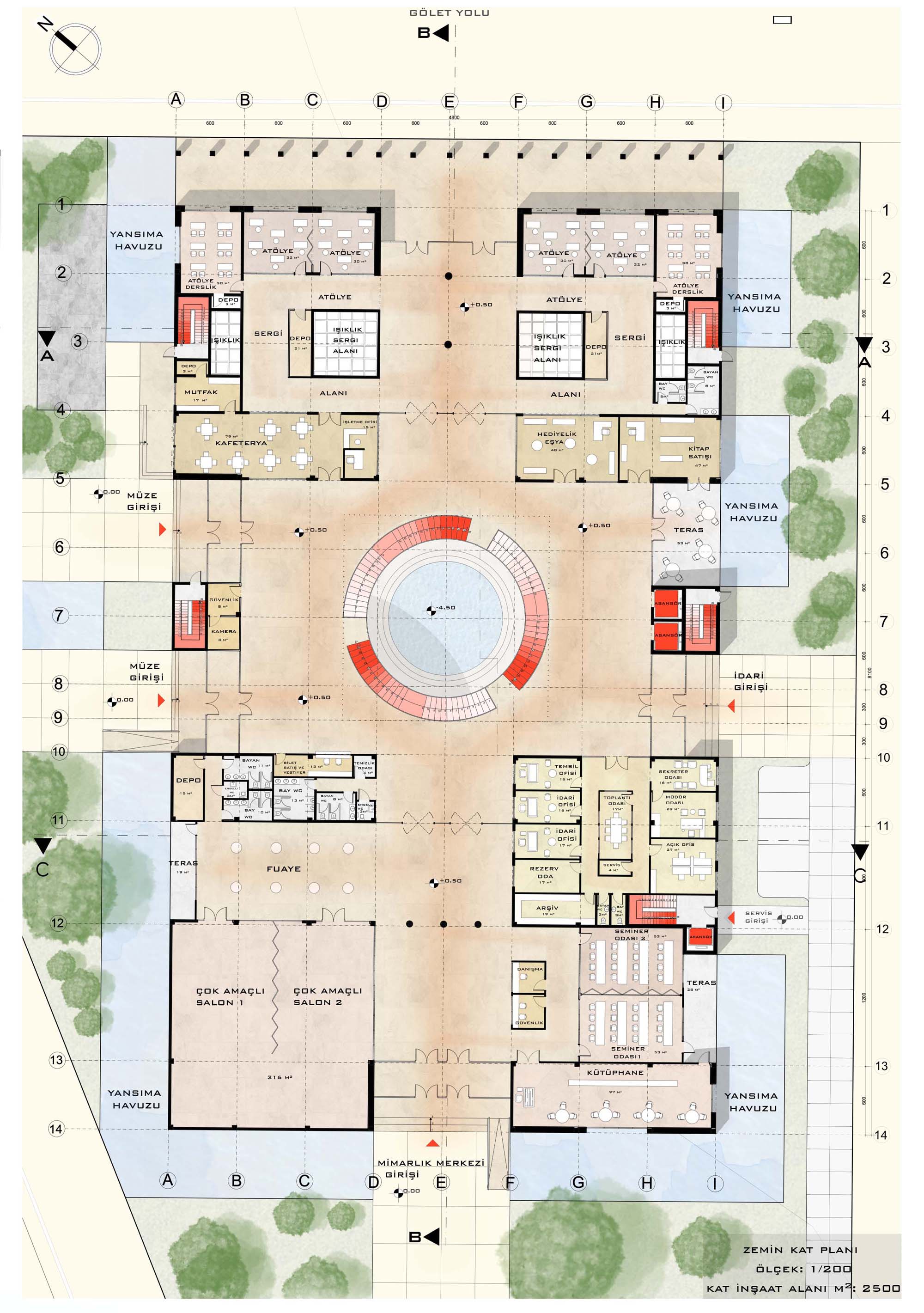
Katılımcı, Ömer Özeren, Ahmet E. Dinçer, Z. Osman Yağcı, Mimar Sinan Müzesi ve Mimarlık Merkezi Ulusal Mimari Proje Yarışması
Proje Yeri: Kayseri
Proje Tipi: Müze
Proje Tipi Grubu: Katılımcı
Tasarım Ekibi: Ömer Özeren, Ahmet E. Dinçer, Z. Osman Yağcı
Statik Projesi: İsmail Er
Proje Başlangıç Yılı: 2021