12/16
Paylaş
Resmi Orjinal Boyutunda Göster
Katılımcı, Ömer Özeren, Ahmet E. Dinçer, Vahit Türüt, Sinan Çelik, İTÜ İşletme Fakültesi Mimari Proje Yarışması
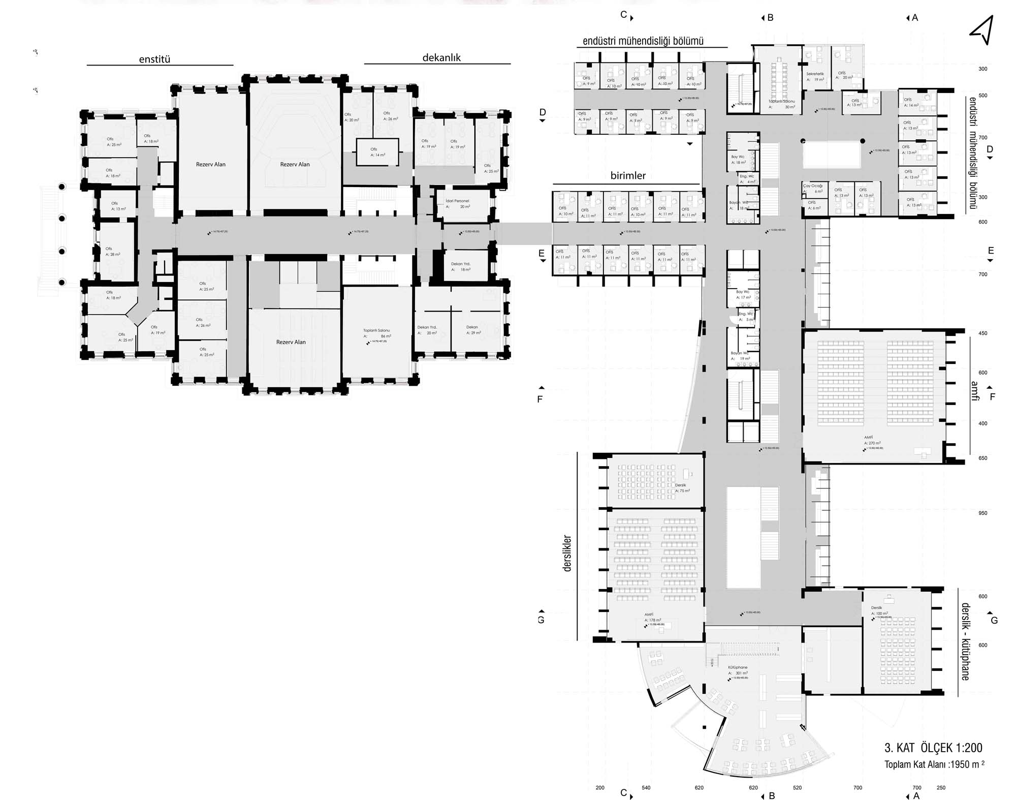
Project Location: İstanbul
Project Type: University Campus
Proje Tipi Grubu: Katılımcı
Tasarım Ekibi: Ömer Özeren, Ahmet E. Dinçer, Vahit Türüt, Sinan Çelik
Project Start Date: 2019