9/16
Paylaş
Resmi Orjinal Boyutunda Göster
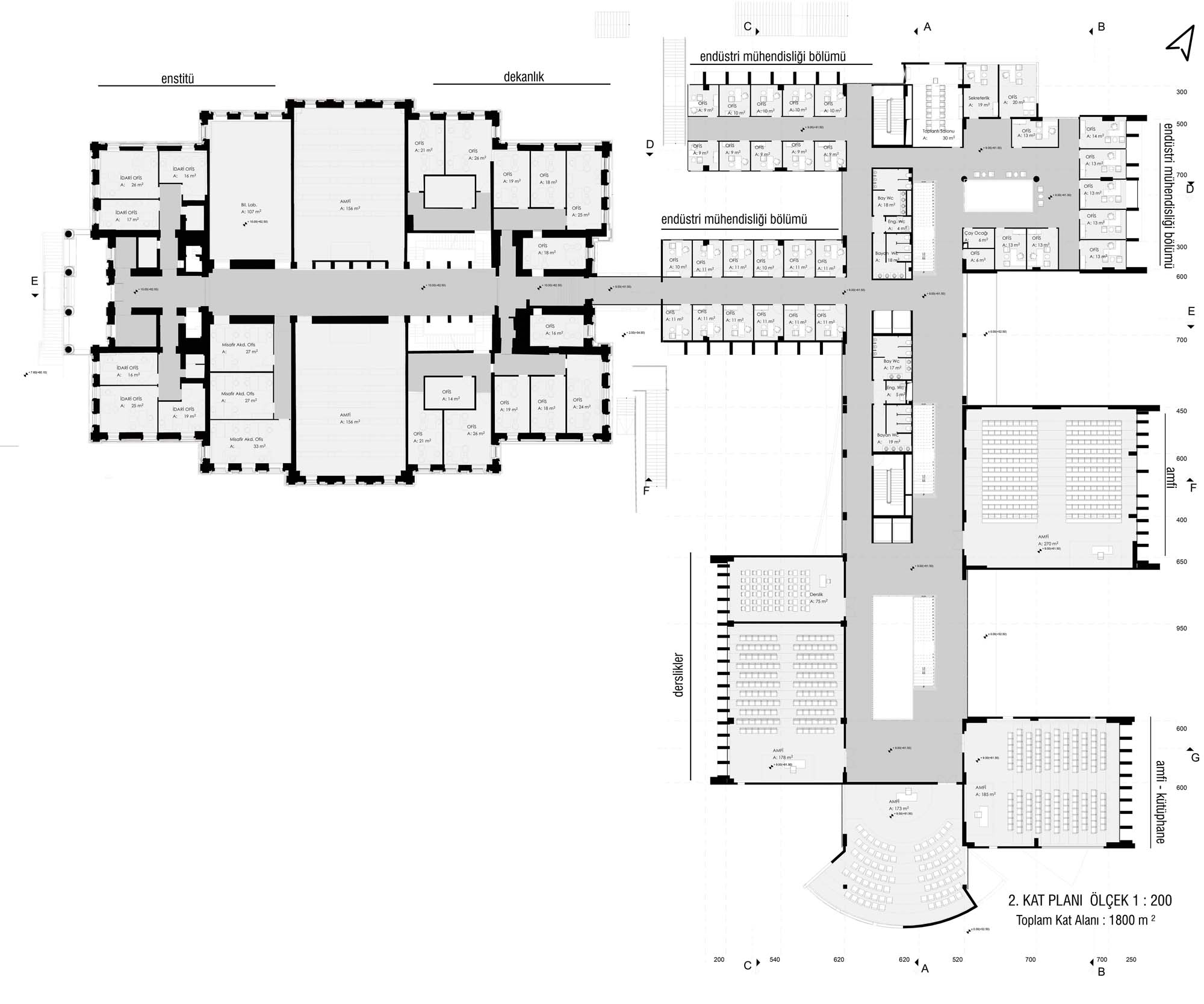
Katılımcı, Ömer Özeren, Ahmet E. Dinçer, Vahit Türüt, Sinan Çelik, İTÜ İşletme Fakültesi Mimari Proje Yarışması
Proje Yeri: İstanbul
Proje Tipi: Üniversite Kampüsü
Proje Tipi Grubu: Katılımcı
Tasarım Ekibi: Ömer Özeren, Ahmet E. Dinçer, Vahit Türüt, Sinan Çelik
Proje Başlangıç Yılı: 2019